Luxury Real Estate Group Boston > Rockland > 20 Pat Rose Way

LRG Boston

(617) 233-5800

355 Boylston St

Boston, Ma 02116

20 Pat Rose Way

Rockland, MA

Property Description

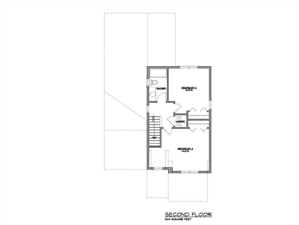
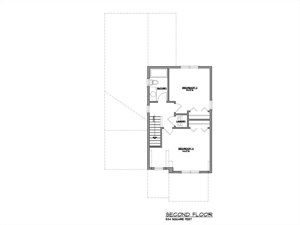
Welcome to Concord Meadows, a brand-new Nantucket-style neighborhood in Rockland with 19 new homes to be built! 20 Pat Rose Way is a 1,582 +/- sq. ft., 3-bedroom, 2.5-bathroom cottage-style home, with an open first floor plan, first floor bedroom suite, and two additional bedrooms on the second floor. This house features professionally designed finishes, hardwood floors throughout the first floor, shaker-style kitchen & vanity cabinets, stainless steel energy efficient kitchen appliances, full basement, fully landscaped, 10-year home warranty, and more! This home is under construction and will be move-in ready by mid-summer.

offered at

$684,900

  • Listing ID: 73370357
  • Bedrooms: 3
  • Full Baths: 2
  • Half Baths: 1
  • Living Area: 1,582 sqft Convert
  • Lot Size: 4,640 sqft Convert
  • Acres: 0.11

Additional Details

Type: Single Family, Single Family Residence

Zip Code: 02370

Parking

Garage: 1

Garage Capacity: 1

Parking: Attached, Off Street, Paved

Parking Spaces: 1

Rooms and Dimensions

Total Rooms: 6

Contact: LRG Boston at (617) 233-5800

LRGBOSTON.COM

355 Boylston St. Boston, MA 02116

Map

Photos