Luxury Real Estate Group Boston > Newton > 41 Kilburn Rd

LRG Boston

(617) 233-5800

355 Boylston St

Boston, Ma 02116

41 Kilburn Rd

Newton, MA

Property Description

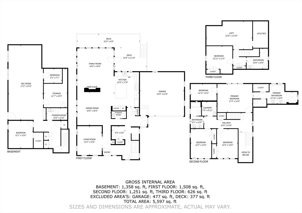
Exciting new construction in West Newton! This five bedroom home is located on a tree lined street across from Wellington Park but is a short walk to commuter rail, express bus and restaurants. The first floor has a gracious layout including a sitting room, dining room, and open kitchen/family room. The kitchen is a cook’s dream, with quartz counters, hardwood cabinets, stainless steel appliances and induction cooking! Spacious family room w/ fireplace and a wraparound deck are ideal for entertaining. Large windows let in abundant sunlight. The luxurious primary suite includes a lavish bath and large walk-in closet. Lower-level has a large family/play room, 5th BR, full bath and ample storage. The house is all-electric with 12 heat zones; mudroom and bathrooms feature radiant floor heat. HERS rating of 33 reflects extraordinary energy efficiency! 2-car garage, 2nd floor laundry. An exceptionally well-designed home in a great location, a rare opportunity in Newton!

offered at

$2,699,000

  • Listing ID: 73424979
  • Bedrooms: 5
  • Full Baths: 4
  • Half Baths: 1
  • Living Area: 4,743 sqft Convert
  • Lot Size: 8,400 sqft Convert
  • Acres: 0.19

Additional Details

Type: Single Family, Single Family Residence

Area: West Newton

Zip Code: 02465

Parking

Garage: 2

Garage Capacity: 4

Parking: Attached, Garage Door Opener, Storage, Paved Drive, Off Street, Deeded, Paved

Parking Spaces: 4

Rooms and Dimensions

Total Rooms: 10

Contact: LRG Boston at (617) 233-5800

LRGBOSTON.COM

355 Boylston St. Boston, MA 02116

Map

Photos