Luxury Real Estate Group Boston > Natick > 5A Wilson St #5A

LRG Boston

(617) 233-5800

355 Boylston St

Boston, Ma 02116

5A Wilson St #5A

Natick, MA

Property Description

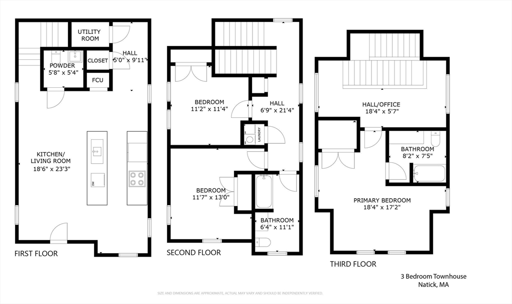
Welcome to Stonegate Square, an exclusive enclave of eight beautifully designed townhomes in the heart of Natick Center. These newly constructed residences offer contemporary living with open concept plans featuring 3- and 4-bedroom layouts to suit a variety of lifestyles. Each townhome has been meticulously crafted with modern finishes and abundant natural light on 3 levels. Nestled in a charming residential neighborhood with an expertly curated landscape plan, your own private patio and ample outdoor space, Stonegate Square allows for an exceptional quality of life in a turn-key residence. Ideally situated just steps from the commuter rail, this community provides unmatched convenience for commuters while placing you within walking distance of Natick's vibrant restaurants, boutique shops, and the cherished Natick Common. Whether you're enjoying a leisurely stroll, grabbing coffee at a local café, or attending seasonal events on the Common, you'll be at the center of it all.

offered at

$899,000

  • Listing ID: 73428230
  • Bedrooms: 3
  • Full Baths: 2
  • Half Baths: 1
  • Living Area: 1,887 sqft Convert

Additional Details

Type: Condo, Condominium

Style: Townhouse

Zip Code: 01760

HOA Fee: $412

Living Levels: 3

Unit Level: 1

Parking

Garage Capacity: 2

Parking: Deeded, Paved

Parking Spaces: 2

Rooms and Dimensions

Total Units: 8

Total Floors: 3

Total Rooms: 7

Contact: LRG Boston at (617) 233-5800

LRGBOSTON.COM

355 Boylston St. Boston, MA 02116

Map

Photos