LRG Boston
(617) 233-5800
355 Boylston St
Boston, Ma 02116

42 Chauncy #8A
Boston, MA

Property Description
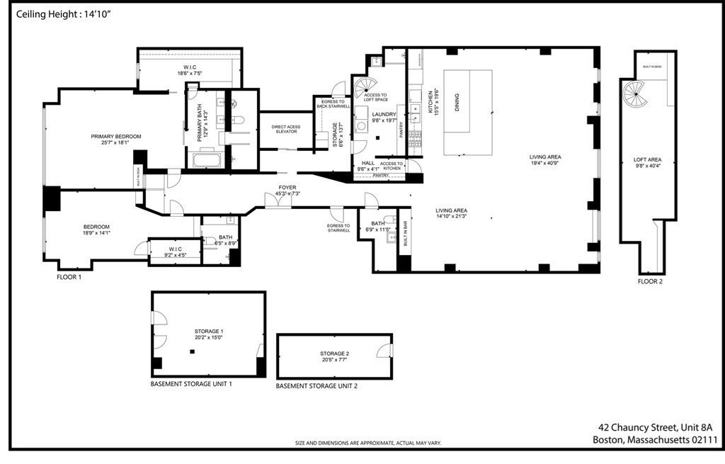
This meticulously designed contemporary loft residence offers 2 bedrooms/2 full & 2 half baths in The Edison, an iconic historic building in a premier downtown location. A stunningly chic renovation of 2 units with just under 4,000 sq.ft., front to back exposures and direct elevator access is a true urban oasis with 3 large deeded storage units. An expansive living area is accentuated by 14’10” ceilings, oversized windows, polished concrete floors, whitewashed brick walls, a mirrored built-in bar and multiple entertaining options. A high-end chef’s kitchen showcases custom Zebrawood cabinetry, SubZero and Gaggenau appliances and a Wenge wood dining platform. A back pantry area offers additional storage and laundry with access to a lofted lounge area with office. The dramatic main hallway leads to 2 spacious bedrooms both with en-suite baths. The king-sized primary suite features a built-in desk, custom walk-in closet and luxurious 5-piece bath. 3 garage spaces available for rent.
offered at
$2,695,000
- Listing ID: 73433187
- Bedrooms: 2
- Full Baths: 2
- Half Baths: 2
- Living Area: 3,896 sqft Convert
Additional Details
Type: Condo, Condominium
Style: Mid-Rise
Area: Leather District
Zip Code: 02111
HOA Fee: $2,524
Living Levels: 1
Unit Level: 8
Parking
Garage: 3
Garage Capacity: 3
Parking: Rented
Rooms and Dimensions
Total Units: 23
Total Floors: 1
Total Rooms: 5
Contact: LRG Boston at (617) 233-5800

LRGBOSTON.COM
355 Boylston St. Boston, MA 02116