Luxury Real Estate Group Boston > Cambridge > 17 Marie Avenue #3

LRG Boston

(617) 233-5800

355 Boylston St

Boston, Ma 02116

17 Marie Avenue #3

Cambridge, MA

Property Description

Top-floor, south-facing and flooded with natural light, this 3-bedroom flat crowns a 3-unit Victorian building in historic Mid-Cambridge near Maple Avenue and the Duffet Tot lot playground. With high ceilings, maple and fur floors, and two elegant bays, the home radiates warmth and space. The vintage kitchen was redesigned to welcome light through a large picture window, while a walk-in pantry off the rear bedroom offers a rare opportunity: convert it into a future ensuite bath. This classic layout blends charm and potential, inviting your creative vision. Enjoy a private covered deck, storage, and peaceful surroundings just moments from Harvard University, the shops and restaurants of Inman Square, and the Central Sq (0.8 mile) or Union Sq T stations (0.7 mile). Whether you're drawn to the architectural character, the sun-drenched interiors, or the promise of transformation, this top-floor condo offers a rare mix of serenity and possibility in one of Cambridge’s most coveted enclaves.

offered at

$1,075,000

  • Listing ID: 73434754
  • Bedrooms: 3
  • Full Baths: 1
  • Living Area: 1,234 sqft Convert

Additional Details

Type: Condo, Condominium

Style: 2/3 Family

Area: Mid Cambridge

Zip Code: 02139

HOA Fee: $400

Living Levels: 1

Unit Level: 3

Parking

Parking: On Street

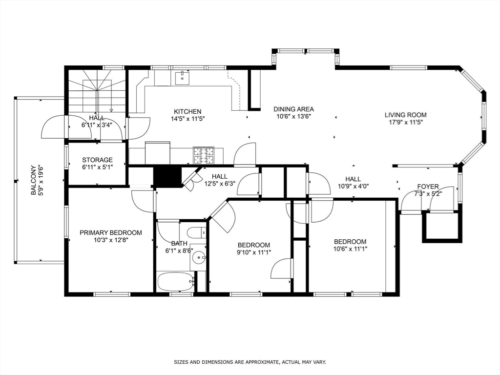
Rooms and Dimensions

Total Units: 3

Total Floors: 1

Total Rooms: 6

Contact: LRG Boston at (617) 233-5800

LRGBOSTON.COM

355 Boylston St. Boston, MA 02116

Map

Photos