LRG Boston
(617) 233-5800
355 Boylston St
Boston, Ma 02116

138 Main St #5
Fairhaven, MA

Property Description
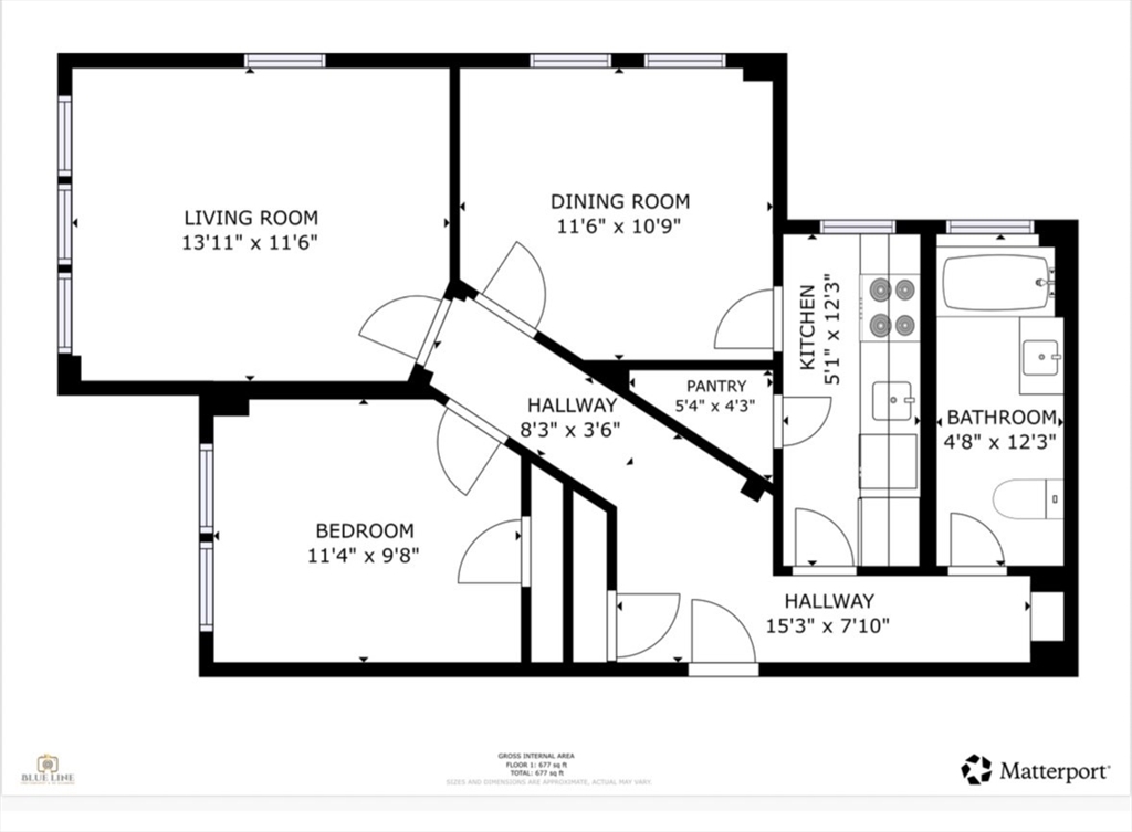
This unique waterfront first floor condominium includes heat plus many common amenities. Located on the inner harbor with calming view of the historic New Bedford working waterfront and the "Castle on the Hill" otherwise known as Fairhaven High School. Off street parking, on-site laundry and extra storage space offered in addition to the 1 bedroom unit. Located within close proximity to Cushman Park, Fort Phoenix, the bike path and Fairhaven's charming village center. Interior 3D video: https://my.matterport.com/show/?m=PopYw3SyXsp&mls=1
offered at
$260,000
- Listing ID: 73435391
- Bedrooms: 1
- Full Baths: 1
- Living Area: 624 sqft Convert
Additional Details
Type: Condo, Condominium
Style: Townhouse
Zip Code: 02719
HOA Fee: $420
Living Levels: 3
Unit Level: 1
Parking
Parking: Off Street, Assigned, Guest
Parking Spaces: 1
Rooms and Dimensions
Total Units: 15
Total Floors: 3
Total Rooms: 4
Contact: LRG Boston at (617) 233-5800

LRGBOSTON.COM
355 Boylston St. Boston, MA 02116