LRG Boston
(617) 233-5800
355 Boylston St
Boston, Ma 02116

138 Mantell Rd
Uxbridge, MA

Property Description
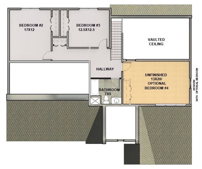
Home is UNDER CONSTRUCTION-- LISTED PHOTOS ARE OF A SIMILAR HOME. Discover the unparalleled lifestyle awaiting you at Pine Ridge, the premier new construction community in Uxbridge, MA, perfectly situated in the heart of the Blackstone Valley Heritage Corridor. The EVERLEIGH home plan offers full 1st floor living w/ 1st floor Primary Suite & Laundry, as well as, 3 spacious bedrooms upstairs. The vaulted ceiling in the great room, along with an open floorplan, makes this home feel modern & inviting. Ready for DEC 2025 delivery. Your forever home at Pine Ridge is just a visit away—come see why this is the perfect place to call home!
offered at
$719,900
- Listing ID: 73436782
- Bedrooms: 4
- Full Baths: 2
- Half Baths: 1
- Living Area: 2,400 sqft Convert
- Lot Size: 19,602 sqft Convert
- Acres: 0.45
Additional Details
Type: Single Family, Single Family Residence
Zip Code: 01569
HOA Fee: $20
Parking
Garage: 2
Garage Capacity: 2
Parking: Attached, Paved
Parking Spaces: 2
Rooms and Dimensions
Total Rooms: 8
Contact: LRG Boston at (617) 233-5800

LRGBOSTON.COM
355 Boylston St. Boston, MA 02116