LRG Boston
(617) 233-5800
355 Boylston St
Boston, Ma 02116

17 Cazenove St #404
Boston, MA

Property Description
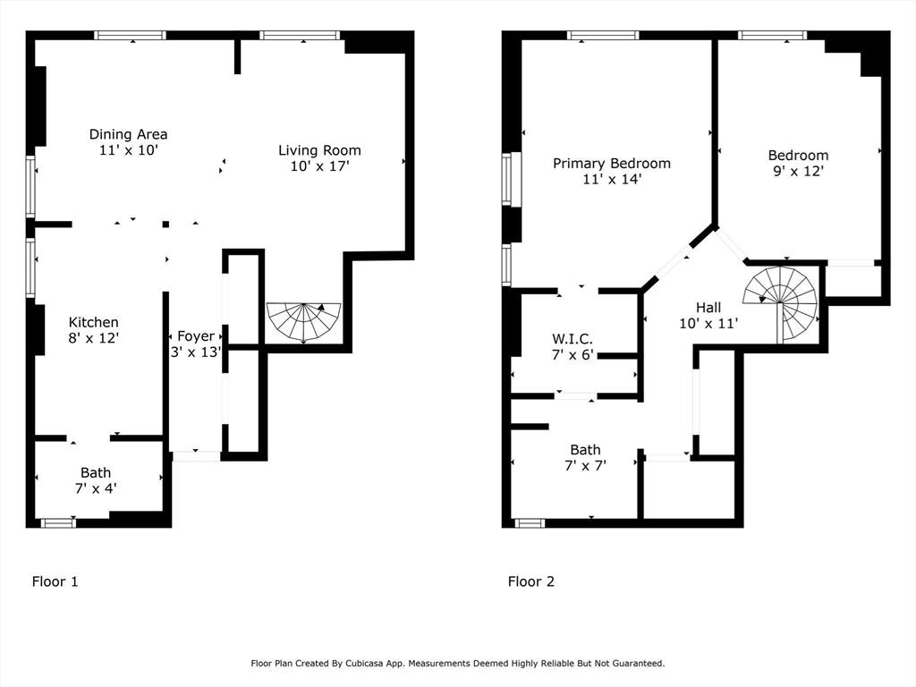
Penthouse Duplex available 11/1 in the heart of the South End's Golden Triangle. Tucked away on a charming, tree-lined street, this beautifully appointed condo combines comfort, character, and a prime location in one of Boston’s most desirable neighborhoods. The main floor showcases an open-concept living and dining area with rich hardwood floors and abundant natural light—ideal for both everyday living and entertaining. A well-equipped galley kitchen provides plenty of cabinetry and counter space for all your culinary needs. Upstairs, you'll find two generously proportioned bedrooms with ample closet space. Additional private storage is available in the basement, along with shared laundry for added convenience. Take in sweeping city views from the shared rooftop deck—perfect for relaxing or hosting guests—or retreat to the peaceful private garden area at ground level, just steps from your door. Just moments from public transportation, top-rated dining and boutique shopping.
Contact: LRG Boston at (617) 233-5800

LRGBOSTON.COM
355 Boylston St. Boston, MA 02116