LRG Boston
(617) 233-5800
355 Boylston St
Boston, Ma 02116

118.5 Market St #1
Amesbury, MA

Property Description
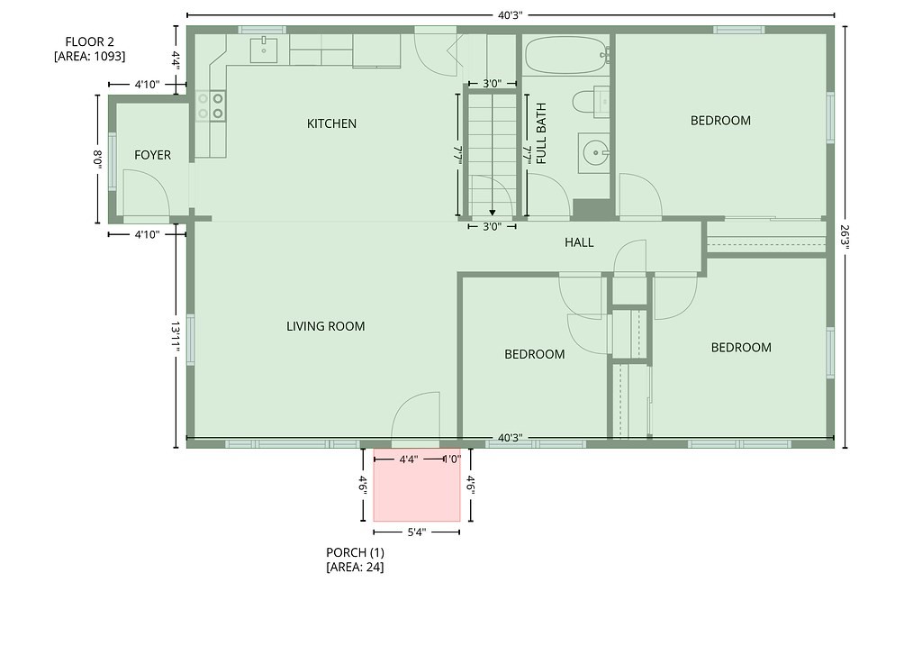
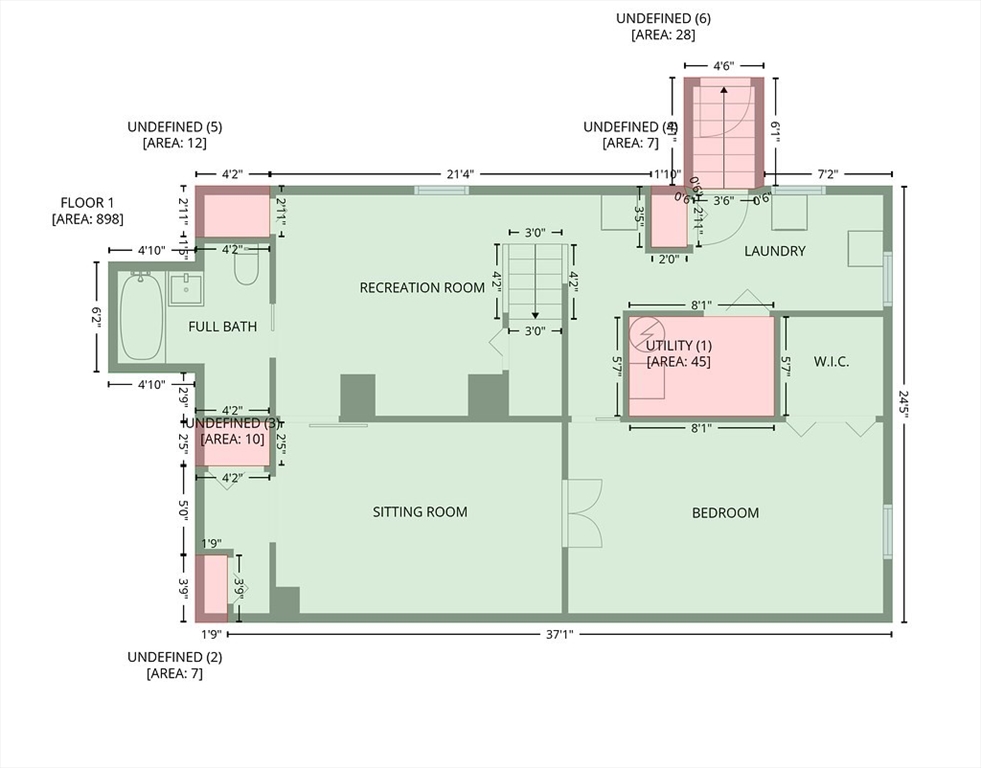
Welcome to 118 1/2 Market Street in Amesbury. This spacious 4 bedroom, 2 bath single-family rental offers approx. 2,212 sq ft of living space with three bedrooms on the main level and a fully finished lower level featuring a fourth bedroom, family room, full bath, and laundry area. The remodeled kitchen boasts quartz countertops, stainless steel appliances, blue cabinetry, and porcelain tile flooring. Enjoy a fenced yard, a 1-car garage plus driveway parking for three cars. Conveniently located near downtown Amesbury shops, restaurants, and easy access to Routes 95 & 495. Landlord provides water, sewer, and trash. Tenant pays electric, heat, cable and internet. Tenant maintains lawn and snow removal (equipment provided). Available now! Pets will be considered on a case by case basis. NO FEE. FIRST AND SECURITY TO MOVE IN.
Contact: LRG Boston at (617) 233-5800

LRGBOSTON.COM
355 Boylston St. Boston, MA 02116