LRG Boston
(617) 233-5800
355 Boylston St
Boston, Ma 02116

50 George St #2
Mansfield, MA

Property Description
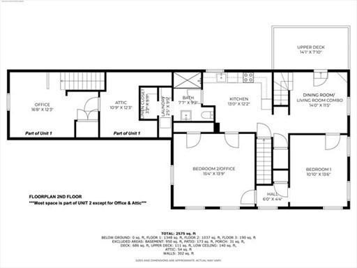
Positioned at 50 George St in the charming town of Mansfield, Massachusetts, this colonial residence presents an attractive property in great condition. The kitchen offers a harmonious blend of functionality and design, featuring shaker cabinets that provide a clean, classic aesthetic while ensuring ample storage. This residence, located on floor number 2, includes two bedrooms and one full bathroom, along with the added benefit of a patio, extending your living space outdoors. Amenities include off street parking, appliances, washer and dryer hook-ups. This two-bedroom colonial is ready to welcome you to a lifestyle of comfort and convenience.
Contact: LRG Boston at (617) 233-5800

LRGBOSTON.COM
355 Boylston St. Boston, MA 02116