Luxury Real Estate Group Boston > Marblehead > 20 Mechanic Square #2

LRG Boston

(617) 233-5800

355 Boylston St

Boston, Ma 02116

20 Mechanic Square #2

Marblehead, MA

Property Description

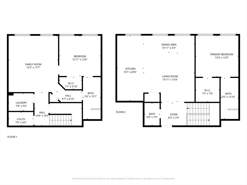
Combining elegant period details with the modern convenience of new construction, this 2 bedroom, 2.5 bath townhome at The Elbridge offers soaring ceilings, oversized windows, and high-end finishes throughout. The open floorplan features a sun-filled living space, primary-level bedroom suite, custom cabinetry, designer details, and top-of-the-line appliances. A lower-level bonus family room and second bedroom with ensuite provide flexibility, while central A/C and dedicated parking add ease. Set in a small exclusive development within a stately 116-year-old brick building perched on a hill just off Washington Street in Old Town Marblehead, this home blends seaside living with historic New England charm. Beautiful beaches, quaint shops, water sports, gourmet dining, excellent schools, and vibrant arts and culture make Marblehead a fabulous place to live.

offered at

$1,200,000

  • Status: Back on Market
  • Listing ID: 73440548
  • Bedrooms: 2
  • Full Baths: 2
  • Half Baths: 1
  • Living Area: 1,965 sqft Convert

Additional Details

Type: Condo, Condominium

Style: Townhouse

Area: Old Town

Zip Code: 01945

HOA Fee: $534

Living Levels: 2

Unit Level: 1

Parking

Garage Capacity: 2

Parking: Off Street, Deeded, Paved, Exclusive Parking

Parking Spaces: 2

Rooms and Dimensions

Total Units: 8

Total Floors: 2

Total Rooms: 6

Contact: LRG Boston at (617) 233-5800

LRGBOSTON.COM

355 Boylston St. Boston, MA 02116

Map

Photos