LRG Boston
(617) 233-5800
355 Boylston St
Boston, Ma 02116

96 Jamaica St
Boston, MA

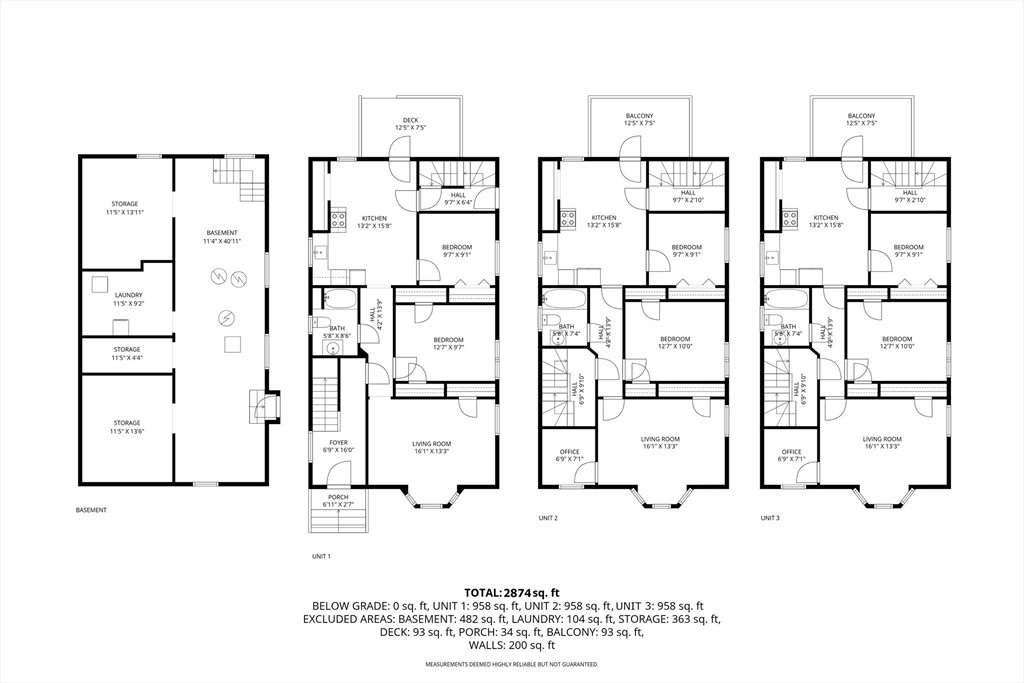
Property Description
Centrally located, classic 3-family property with 30+ year rental history. Unit 1 has 2 beds, 1 bath, & large, eat-in kitchen. Units 2 & 3 offer 2 beds + 1 bath. All units enjoy private back porches overlooking backyard and gardens. Many updates include new hot water heaters and new oil tank for unit 1; units 2 & 3 are gas heat. 200 Amp main electrical service, laundry in basement. Nice backyard & gardens. Located just minutes to the Arboretum, Centre & South St. shops/cafes, Forest Hills station, library & Jamaica Pond. Fully rented with room for updates and renovations to increase cash flow. Home will be delivered with all 3 units tenanted, cannot be delivered vacant. Professionally managed. '21 New asphalt roof. Don't miss this excellent investment opportunity in the heart of JP!
offered at
$1,299,999
- Listing ID: 73441311
- Bedrooms: 6
- Full Baths: 3
- Living Area: 3,174 sqft Convert
- Lot Size: 5,370 sqft Convert
- Acres: 0.12
Additional Details
Type: Multi-Family, 3 Family - 3 Units Up/Down
Area: Jamaica Plain
Zip Code: 02130
Levels: 3
Parking
Parking: Other
Rooms and Dimensions
Total Units: 3
Total Floors: 3
Total Rooms: 14
Contact: LRG Boston at (617) 233-5800

LRGBOSTON.COM
355 Boylston St. Boston, MA 02116