LRG Boston
(617) 233-5800
355 Boylston St
Boston, Ma 02116

71 Chestnut Street
Hatfield, MA

Property Description
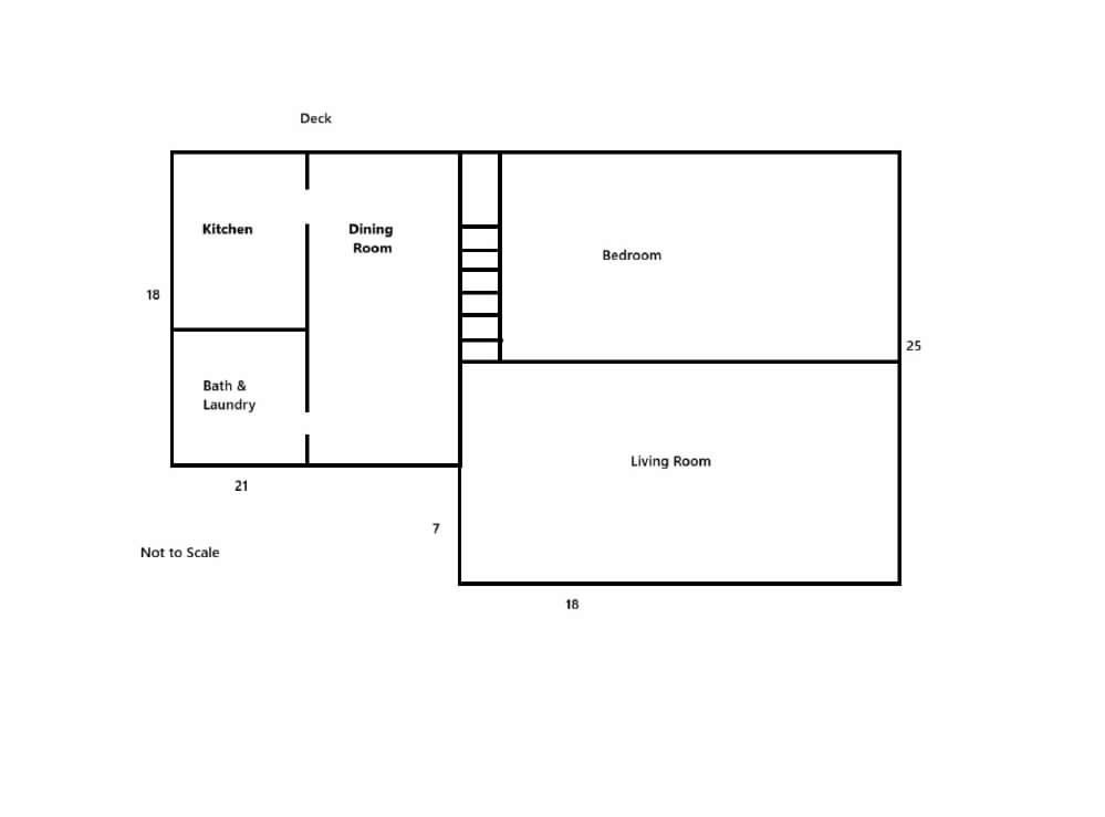
This cute Hatfield farmhouse with a barn and detached 2-car garage has great potential. It is a little dated but overall good condition. Updated high efficiency gas heating system, vinyl siding and a large composite deck. First floor bedroom, bath with laundry and the second floor has one more bedroom plus a loft area that could be a nice home office.
offered at
$359,000
- Status: New
- Listing ID: 73443054
- Bedrooms: 2
- Full Baths: 1
- Living Area: 1,178 sqft Convert
- Lot Size: 50,725 sqft Convert
- Acres: 1.16
Additional Details
Type: Single Family, Single Family Residence
Zip Code: 01038
Parking
Garage: 2
Garage Capacity: 2
Parking: Detached, Storage, Workshop in Garage, Garage Faces Side, Shared Driveway, Off Street, Stone/Gravel
Parking Spaces: 2
Rooms and Dimensions
Total Rooms: 6
Contact: LRG Boston at (617) 233-5800

LRGBOSTON.COM
355 Boylston St. Boston, MA 02116