Luxury Real Estate Group Boston > Boston > 348 Beacon Street #4

LRG Boston

(617) 233-5800

355 Boylston St

Boston, Ma 02116

348 Beacon Street #4

Boston, MA

Property Description

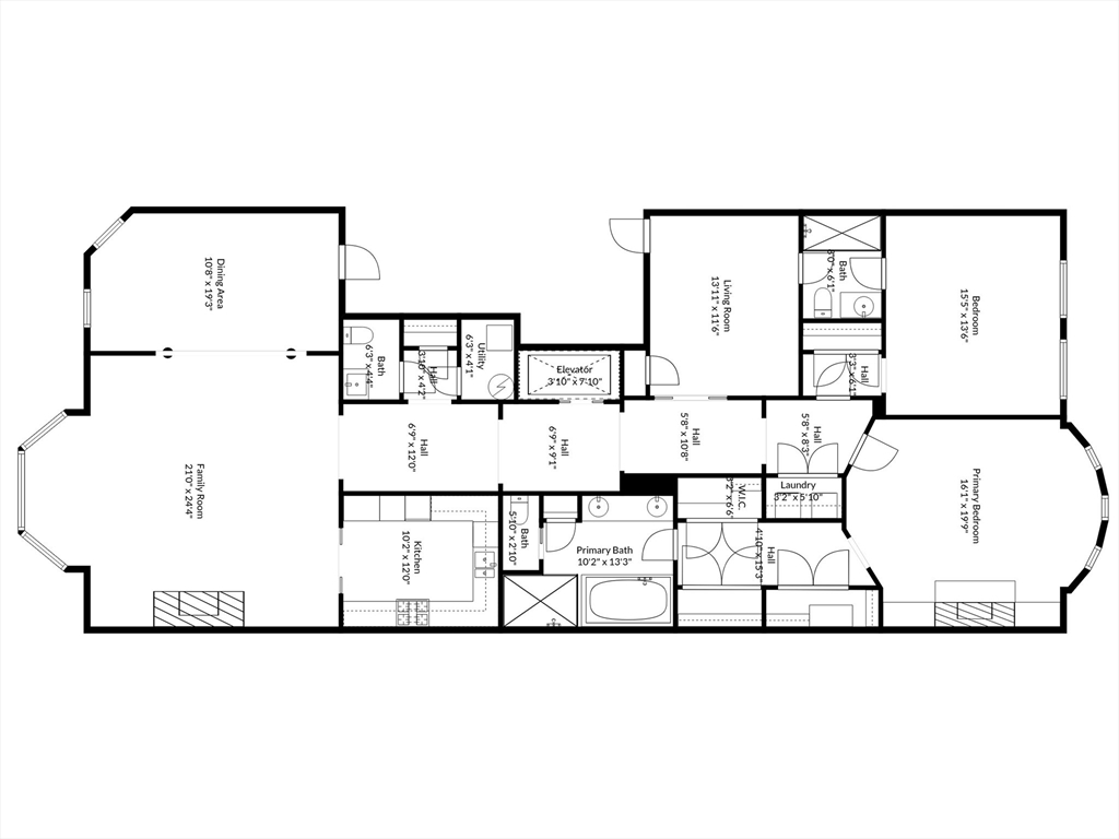
The Former Converse Mansion, this Premier Sunnyside/Waterside Luxury Residence with Stunning Charles River Views Experience refined living in this expansive 2,367 square foot luxury residence, ideally located on the Sunnyside of Beacon St. with glorious views of the Charles River. This fully furnished elegant home features 2 spacious bedrooms, a versatile den, 2.5 bathrooms, and direct elevator access into the unit. Included are two deeded parking spaces for added convenience. Thoughtfully designed for both comfort and sophistication, the residence boasts a grand formal dining room and sun-filled family room, each lined with large windows that capture abundant natural light. The primary suite overlooks Beacon Street and offers custom-built closets and a beautifully appointed marble en-suite bathroom with a large walk-in shower.

offered at

$17,500

  • Listing ID: 73443198
  • Bedrooms: 2
  • Full Baths: 2
  • Half Baths: 1
  • Living Area: 2,367 sqft Convert
  • Lot Size: 6,000 sqft Convert

Additional Details

Type: Rental, Condominium

Area: Back Bay

Zip Code: 02116

Unit Level: 4

Parking

Garage Capacity: 2

Parking Spaces: 2

Rooms and Dimensions

Total Rooms: 6

Contact: LRG Boston at (617) 233-5800

LRGBOSTON.COM

355 Boylston St. Boston, MA 02116

Map

Photos