LRG Boston
(617) 233-5800
355 Boylston St
Boston, Ma 02116

363 Main St
Acushnet, MA

Property Description
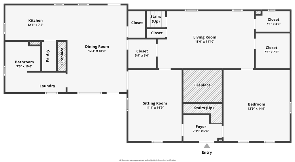
Discover history at the Pardon Tabor Home located at 363 Main Street, Acushnet, MA. This captivating residence, built in 1788, offers 2,276 square feet of living space on nearly two acres. Featuring 3 bedrooms, 2 bathrooms, and 2 kitchens on separate levels, this home offers many possibilities. Original floors and exposed beams highlight the home's rich past while newer windows invite natural light throughout. Enter through the main entrance to find a grand sitting room. Throughout the home, seven fireplaces add warmth and character. The picturesque grounds in the northern part of town includes a tranquil small creek at the back of the property, enhancing its serene appeal. This historic gem offers a rare opportunity to own a piece of Acushnet history while presenting the option of restoring this antique residence for a new era.
offered at
$599,900
- Listing ID: 73443670
- Bedrooms: 3
- Full Baths: 2
- Living Area: 2,276 sqft Convert
- Lot Size: 87,090 sqft Convert
- Acres: 2
Additional Details
Type: Single Family, Single Family Residence
Zip Code: 02743
Parking
Garage Capacity: 8
Parking: Paved
Parking Spaces: 8
Rooms and Dimensions
Total Rooms: 8
Contact: LRG Boston at (617) 233-5800

LRGBOSTON.COM
355 Boylston St. Boston, MA 02116