LRG Boston
(617) 233-5800
355 Boylston St
Boston, Ma 02116

19 Orient St
Worcester, MA

Property Description
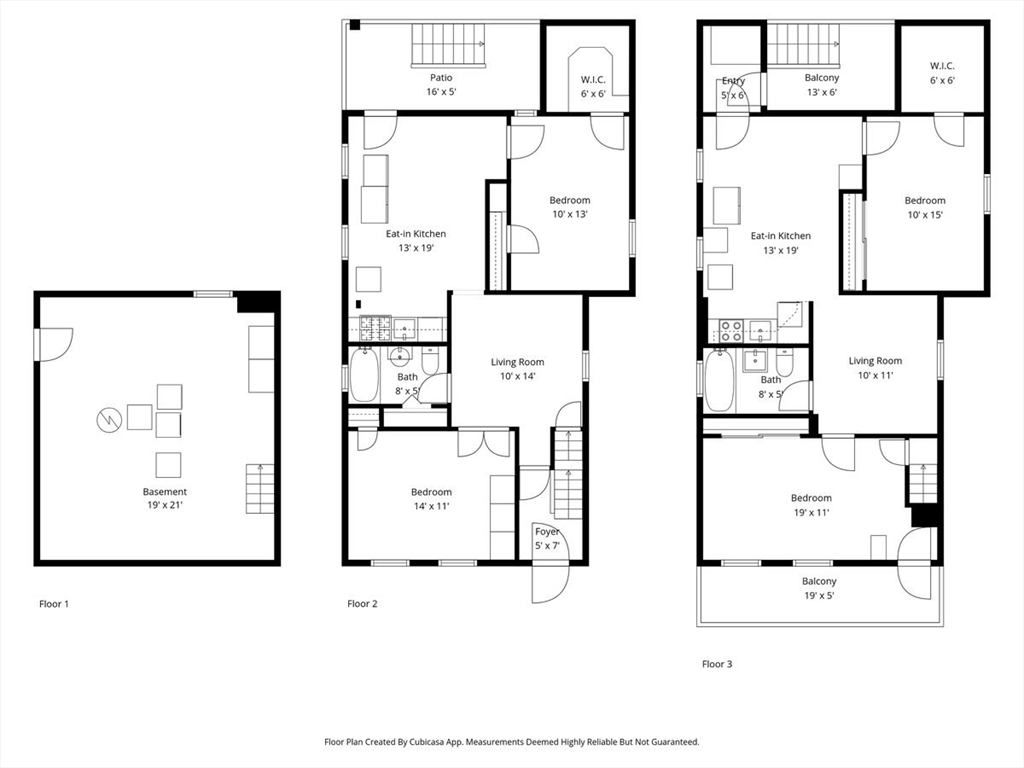
Meticulously maintained two-family home with recent updates in a prime location minutes from UMASS and major highways. Features include separate utilities, a two-car garage with storage, and a quaint yard—ideal for owner-occupants or investors. The home’s roof is approx. 15 years old, with a new second-floor hot water heater (2025), first-floor heater (2019), and garage roof (2024). Unit 1 (to be delivered vacant) offers 2 bedrooms with built-in closets, an updated bath, eat-in kitchen, and hardwood floors. Laundry is in the basement with washer/dryer included. Unit 2, currently rented, mirrors Unit 1’s layout and updates. Both units are well-kept and move-in ready. Close to shops, schools, and public transit—this property offers flexibility, convenience, and investment potential.
offered at
$549,000
- Status: New
- Listing ID: 73444250
- Bedrooms: 4
- Full Baths: 2
- Living Area: 1,720 sqft Convert
- Lot Size: 5,000 sqft Convert
- Acres: 0.11
Additional Details
Type: Multi-Family, Multi Family
Area: Green Hill
Zip Code: 01604
Levels: 2
Parking
Garage: 2
Garage Capacity: 4
Parking: Paved Drive, Off Street
Parking Spaces: 4
Rooms and Dimensions
Total Units: 2
Total Floors: 2
Total Rooms: 8
Contact: LRG Boston at (617) 233-5800

LRGBOSTON.COM
355 Boylston St. Boston, MA 02116