LRG Boston
(617) 233-5800
355 Boylston St
Boston, Ma 02116

55 Lawrence Dr #55
Franklin, MA

Property Description
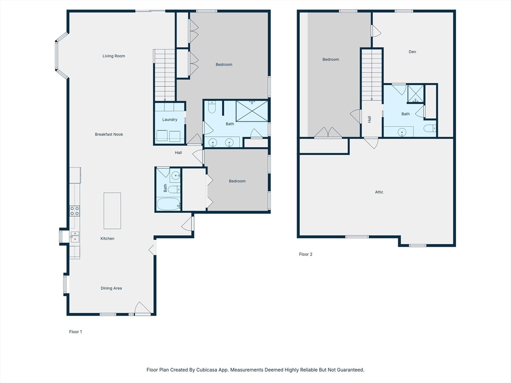
Introducing this Spacious Retreat in Franklin’s Premier 55+ Community! Discover the best of DETACHED adult living in this luxurious, move-in-ready residence! With an exceptionally flexible floor plan, this home boasts 3 bedrooms, 3 full baths, a huge unfinished basement & provides maximum comfort, luxury & convenience! The main level is designed for both relaxation & entertaining! The sun-drenched dining room invites you into the huge eat-in kitchen featuring ample custom cabinetry, an oversized granite island, custom bar area & additional table space! The living room with a cozy fireplace & slider opens to custom stone patio oasis with a gas fire pit—it’s spectacular! A private primary suite on the 1st level along with a separate dedicated office/bedroom complete with custom built-ins is perfect for remote work or guests! A major highlight is the incredible upstairs guest suite featuring a separate bedroom, family room/craft room, full bath & massive walk in storage space! WOW!
offered at
$769,000
- Listing ID: 73444459
- Bedrooms: 3
- Full Baths: 3
- Living Area: 2,650 sqft Convert
Additional Details
Type: Condo, Condominium
Style: Detached, Townhouse
Zip Code: 02038
HOA Fee: $320
Living Levels: 2
Unit Level: 1
Parking
Garage: 2
Garage Capacity: 4
Parking: Attached, Garage Door Opener, Off Street, Paved, Exclusive Parking
Parking Spaces: 4
Rooms and Dimensions
Total Units: 25
Total Floors: 2
Total Rooms: 7
Contact: LRG Boston at (617) 233-5800

LRGBOSTON.COM
355 Boylston St. Boston, MA 02116