LRG Boston
(617) 233-5800
355 Boylston St
Boston, Ma 02116

146 Randall Rd
Berlin, MA

Property Description
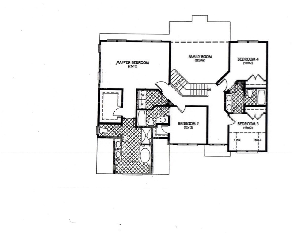
Looking to build a custom home on a quaint country road just down the street from Peach Hill on Randall Rd? You'll love the quality craftsmanship, well appointed open floor plan w/cathedral ceilings, crown molding, wainscoting & chair rail, quartz or granite counters in kitchen & baths, s/s appliances, walk in pantry & gas range. There's a 1st flr home office, hdwd floors in all iving areas (baths & laundry have tile floors), expansive family rm w/gas FP for entertaining. Enjoy 2nd flr primary ensuite w/walk-in tiled shower, soaking tub & nearby laundry rm. Home features 4 bdrms, 4 baths & walk out basement rough plumbed for a 5th bathroom. There's a 2 car garage, ample parking & approx 2+ acres of land! Enjoy country living in a quiet suburban countryside neighboring nicely groomed walking trails & equestrian farms! Beautifully secluded yet offers close proximity to major routes : 495, 62,290 & local shopping/dining. Lot selections now available.
offered at
$1,275,000
- Listing ID: 73445010
- Bedrooms: 4
- Full Baths: 4
- Living Area: 3,200 sqft Convert
- Lot Size: 100,000 sqft Convert
- Acres: 2.3
Additional Details
Type: Single Family, Single Family Residence
Zip Code: 01503
Parking
Garage: 2
Garage Capacity: 2
Parking: Attached, Garage Door Opener, Garage Faces Side, Paved Drive, Off Street, Paved
Parking Spaces: 2
Rooms and Dimensions
Total Rooms: 8
Contact: LRG Boston at (617) 233-5800

LRGBOSTON.COM
355 Boylston St. Boston, MA 02116