Luxury Real Estate Group Boston > Halifax > 780 Old Plymouth St

LRG Boston

(617) 233-5800

355 Boylston St

Boston, Ma 02116

780 Old Plymouth St

Halifax, MA

Property Description

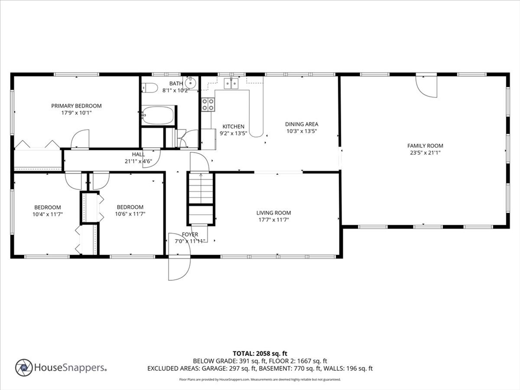
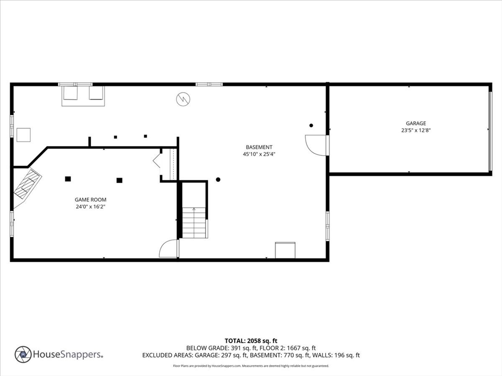
Nestled at 780 Old Plymouth St, Halifax, MA, this single-family residence offers an inviting home, ready to welcome its new owners. Imagine evenings spent in the family room, where its both spacious with a cozy atmosphere; this space encourages relaxation and conversation, making it the heart of the home. The kitchen, complete with a peninsula, offers a practical space for meal preparation and casual dining, allowing for effortless entertaining and everyday living. Step outside onto the patio, where you can immerse yourself in the tranquility of the surrounding woods view, providing a peaceful retreat from the hustle and bustle of daily life. This property, with its three bedrooms, 4BR septic system, brand new bathroom, new roof and a one-car garage (under), presents an incredible opportunity to embrace a lifestyle of comfort and serenity on a generous 70175 sf lot. What's even equally more important is the zoning is "general commercial" so you can "run a business" from where you live

offered at

$749,900

  • Listing ID: 73445076
  • Bedrooms: 3
  • Full Baths: 1
  • Living Area: 1,222 sqft Convert
  • Lot Size: 70,175 sqft Convert
  • Acres: 1.61

Additional Details

Type: Single Family, Single Family Residence

Zip Code: 02338

Parking

Garage: 1

Garage Capacity: 5

Parking: Under, Garage Door Opener, Paved Drive, Off Street, Paved

Parking Spaces: 5

Rooms and Dimensions

Total Rooms: 6

Contact: LRG Boston at (617) 233-5800

LRGBOSTON.COM

355 Boylston St. Boston, MA 02116

Map

Photos