LRG Boston
(617) 233-5800
355 Boylston St
Boston, Ma 02116

68 Robbins St
Avon, MA

Property Description
This house isn't move-in ready — it's dream-in ready. Three units, endless possibilities. Turn it into your family compound. Flip it for serious profit. Or rent three units and live for free. Most people see problems. Smart investors see potential. While everyone's fighting over perfect homes, you could own an empire. Ready to build wealth instead of just buying pretty? OFFERS DUE TUESDAY 10/21 by noon.
offered at
$475,000
- Status: New
- Listing ID: 73445124
- Bedrooms: 6
- Full Baths: 3
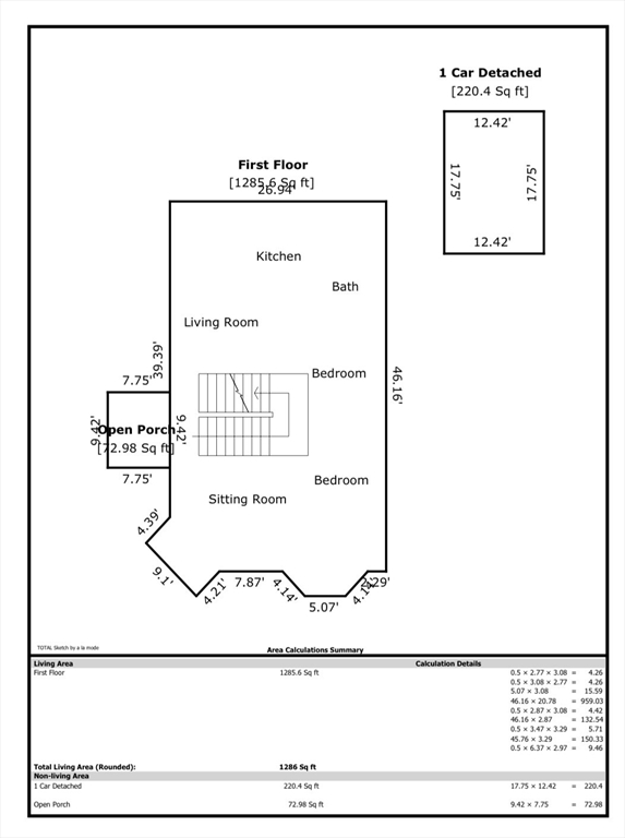
- Living Area: 3,498 sqft Convert
- Lot Size: 7,743 sqft Convert
- Acres: 0.18
Additional Details
Type: Multi-Family, 3 Family
Zip Code: 02322
Levels: 3
Parking
Garage: 1
Garage Capacity: 4
Parking: Off Street, Paved
Parking Spaces: 4
Rooms and Dimensions
Total Units: 3
Total Floors: 3
Total Rooms: 18
Contact: LRG Boston at (617) 233-5800

LRGBOSTON.COM
355 Boylston St. Boston, MA 02116