Luxury Real Estate Group Boston > Ipswich > 123 Jeffreys Neck Rd

LRG Boston

(617) 233-5800

355 Boylston St

Boston, Ma 02116

123 Jeffreys Neck Rd

Ipswich, MA

Property Description

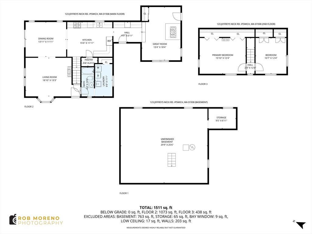
Nestled within the tranquil landscapes of Ipswich, Massachusetts, the residence at 123 Jeffreys Neck Rd presents an inviting 2BR 1BA home, ready to move in and begin a new chapter. This single-family residence offers a unique opportunity to embrace a peaceful lifestyle. The heart of this home is undoubtedly the great room, featuring a woodstove that promises warmth and comfort during the cooler months, while the high and vaulted ceilings, adorned with wood, create an atmosphere of spaciousness and architectural interest. Imagine relaxing evenings spent in this inviting space, where the crackling fire and the unique ceiling design combine to create a truly special ambiance. The kitchen stands out with its thoughtfully designed features, including a backsplash that adds a touch of elegance, a kitchen bar perfect for casual dining or entertaining, and a large kitchen island that provides ample space for meal preparation and gathering.

offered at

$679,000

  • Listing ID: 73445221
  • Bedrooms: 2
  • Full Baths: 1
  • Living Area: 1,772 sqft Convert
  • Lot Size: 8,000 sqft Convert
  • Acres: 0.18

Additional Details

Type: Single Family, Single Family Residence

Zip Code: 01938

Parking

Garage Capacity: 4

Parking: Paved Drive, Off Street

Parking Spaces: 4

Rooms and Dimensions

Total Rooms: 6

Contact: LRG Boston at (617) 233-5800

LRGBOSTON.COM

355 Boylston St. Boston, MA 02116

Map

Photos