Luxury Real Estate Group Boston > Dedham > 47 Maynard Road

LRG Boston

(617) 233-5800

355 Boylston St

Boston, Ma 02116

47 Maynard Road

Dedham, MA

Property Description

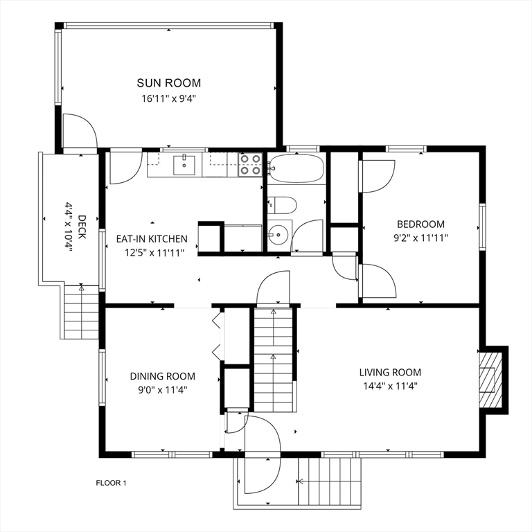
Welcome to this charming 3-bed, 2-bath Cape set on a beautiful corner lot on a quiet Riverdale cul-de-sac. The first floor features hardwood floors, a fireplaced living room, a formal dining room, a first-floor bedroom, full bath, and an eat-in kitchen overlooking peaceful conservation land with access to a screened porch/sun room. Upstairs offers two spacious bedrooms with hardwoods and great closet space plus a tiled ¾ bath. Recent updates include a new heating system (May 2025), upgraded electrical service, chimney repointing, and fresh interior paint (Oct 2025). Enjoy a one-car under garage, off-street parking, and level yard—steps to Riverdale School, parks, shops, and major routes. A warm, well-cared-for home in one of Dedham’s most sought-after neighborhoods! OPEN HOUSE Saturday 11:00-1:00

offered at

$690,000

  • Listing ID: 73446676
  • Bedrooms: 3
  • Full Baths: 2
  • Living Area: 1,296 sqft Convert
  • Lot Size: 7,670 sqft Convert
  • Acres: 0.18

Additional Details

Type: Single Family, Single Family Residence

Area: Riverdale

Zip Code: 02026

Parking

Garage: 1

Garage Capacity: 1

Parking: Under, Off Street

Parking Spaces: 1

Rooms and Dimensions

Total Rooms: 6

Contact: LRG Boston at (617) 233-5800

LRGBOSTON.COM

355 Boylston St. Boston, MA 02116

Map

Photos