Luxury Real Estate Group Boston > Wakefield > 5 Byron St

LRG Boston

(617) 233-5800

355 Boylston St

Boston, Ma 02116

5 Byron St

Wakefield, MA

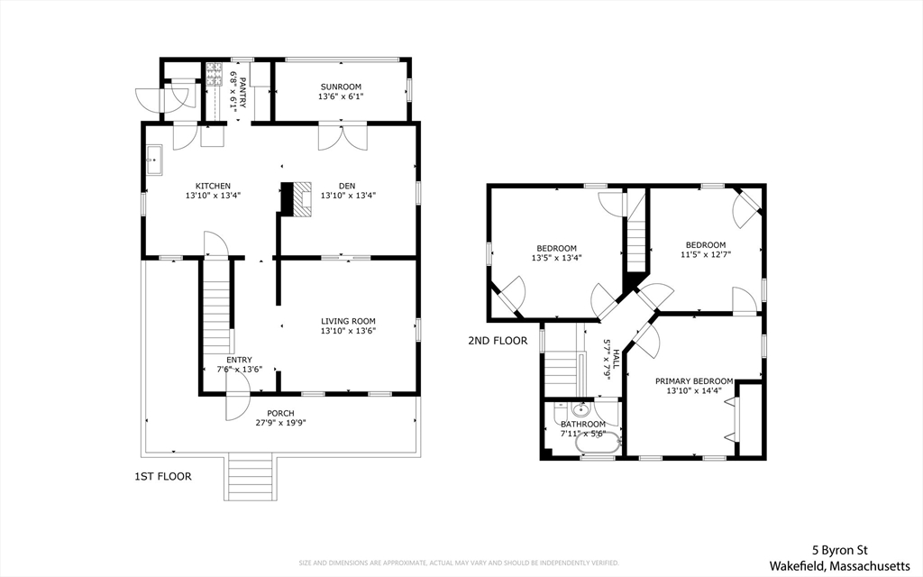
Property Description

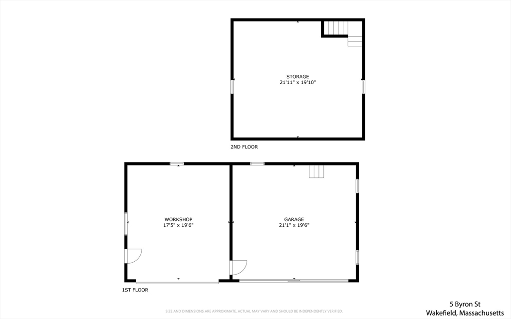
Gorgeous colonial farmhouse in Wakefield's desirable West Side. If you're looking for charm and character, this house has it, starting with the fabulous wrap-around porch! Eat-in kitchen features a soapstone sink and convenient adjacent mudroom. Gorgeous pocket doors with in-laid glass separate the large living room from the cozy den featuring a gas stove for snuggling up on those cold winter nights. French doors lead to a sunroom that makes a perfect reading nook, overlooking the lovely carriage house out back. Upstairs showcases three large bedrooms and a quaint bathroom featuring an antique sink and clawfoot tub. Hardwood floors throughout. Walk-up attic offers additional storage, as does the walk-out basement with charming root cellar. Stunning carriage house offers room for a two car garage and features an adjacent workshop with propane heat. And the second floor offers even more storage! Conveniently located less than a half mile from the commuter rail and Wakefield center.

offered at

$699,000

  • Status: New
  • Listing ID: 73446744
  • Bedrooms: 3
  • Full Baths: 1
  • Living Area: 1,832 sqft Convert
  • Lot Size: 8,080 sqft Convert
  • Acres: 0.19

Additional Details

Type: Single Family, Single Family Residence

Zip Code: 01880

Parking

Garage: 2

Garage Capacity: 4

Parking: Detached, Storage, Workshop in Garage, Carriage Shed

Parking Spaces: 4

Rooms and Dimensions

Total Rooms: 6

Contact: LRG Boston at (617) 233-5800

LRGBOSTON.COM

355 Boylston St. Boston, MA 02116

Map

Photos