Luxury Real Estate Group Boston > Shrewsbury > Lot 386R Clover Glen Circle

LRG Boston

(617) 233-5800

355 Boylston St

Boston, Ma 02116

Lot 386R Clover Glen Circle

Shrewsbury, MA

Property Description

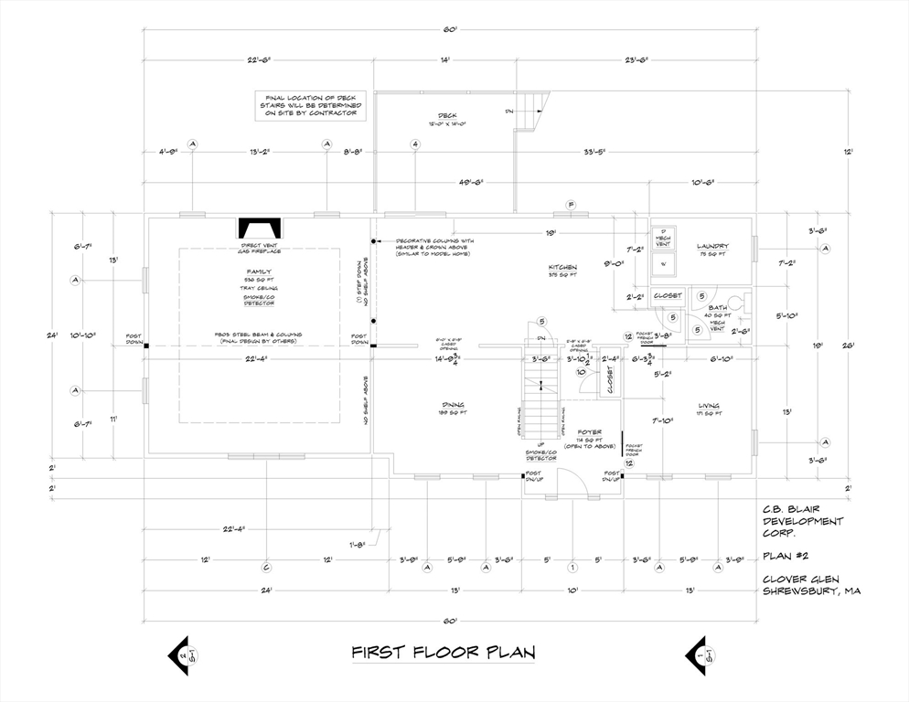
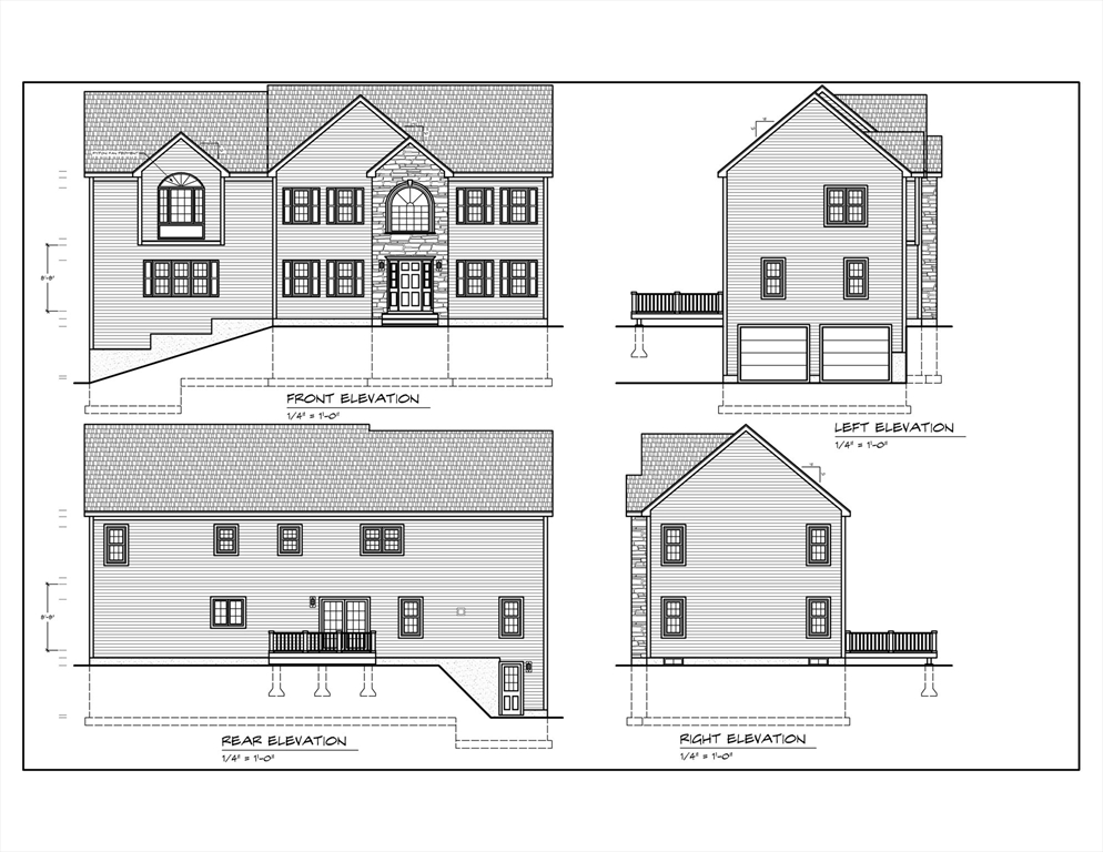
This 3,064-square-foot Colonial has four bedrooms and two and a half bathrooms. Oak hardwood floors are in the foyer, dining room, and living room. Tile flooring is in all 2.5 baths, the kitchen, and the laundry room. A tile shower is included in the master bath. There is a $10,000 appliance allowance. The house is located on a cul-de-sac. No changes to the House Plan or the Kitchen and Bath Cabinet design and layout are allowed. Notes: Exact house location, garage entry, basement access, etc., are lot-dependent. Optional features may be shown on house plans. Other lots may be available!

offered at

$1,225,000

  • Listing ID: 73448848
  • Bedrooms: 4
  • Full Baths: 2
  • Half Baths: 1
  • Living Area: 3,064 sqft Convert
  • Lot Size: 20,348 sqft Convert
  • Acres: 0.47

Additional Details

Type: Single Family, Single Family Residence

Zip Code: 01545

Parking

Garage: 2

Garage Capacity: 4

Parking: Under, Paved Drive, Off Street

Parking Spaces: 4

Rooms and Dimensions

Total Rooms: 10

Contact: LRG Boston at (617) 233-5800

LRGBOSTON.COM

355 Boylston St. Boston, MA 02116

Map

Photos