Luxury Real Estate Group Boston > Winchendon > 47-LT 244 Doyle Avenue

LRG Boston

(617) 233-5800

355 Boylston St

Boston, Ma 02116

47-LT 244 Doyle Avenue

Winchendon, MA

Property Description

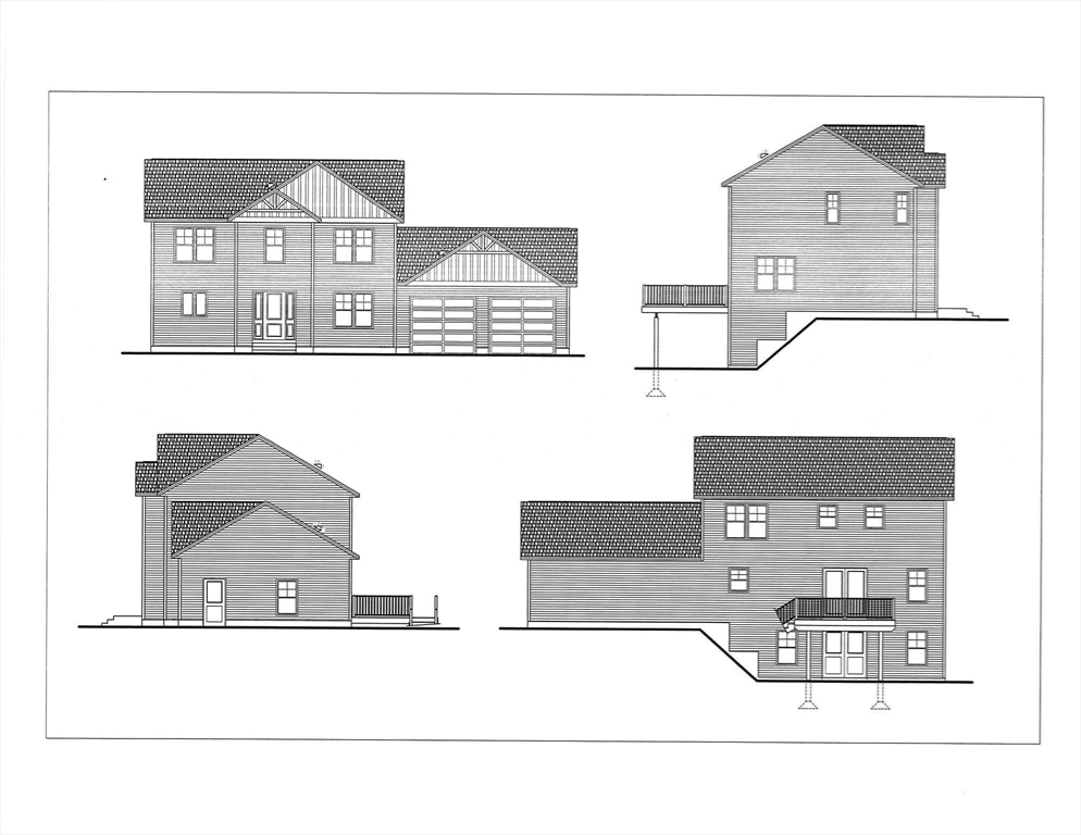
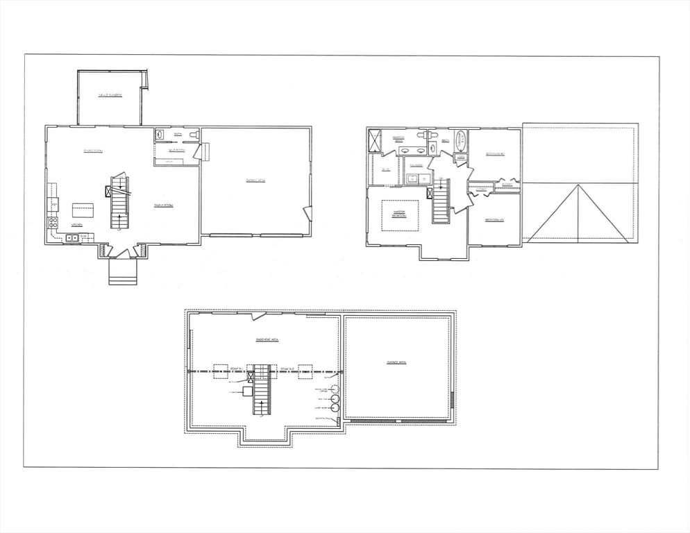
MOVE-IN READY! Discover this stunning brand-new Colonial set on 4 acres in the beautiful Doyle Estates neighborhood. Surrounded by wooded privacy, this quality-built home offers 1,834 sq. ft. of stylish living space. The open-concept layout features luxury vinyl plank flooring, a spacious living room and a convenient mudroom with a custom bench, storage, and half bath. The fully applianced kitchen shines with granite countertops, maple cabinetry and an island perfect for entertaining, while the dining area opens to a 12x14 deck overlooking the peaceful backyard. Upstairs, the luxurious primary suite includes a tray ceiling, sitting area, dual-sink bathroom and barn door to a walk-in closet. Two additional bedrooms, a full bath and laundry room complete the second floor. Enjoy central A/C, an attached 2-car garage, and a walk-out basement ready for future expansion. Doyle Estates—where quality, comfort, and privacy come together in this new neighborhood. Quick closing available!

offered at

$564,900

  • Listing ID: 73449081
  • Bedrooms: 3
  • Full Baths: 2
  • Half Baths: 1
  • Living Area: 1,834 sqft Convert
  • Lot Size: 178,595 sqft Convert
  • Acres: 4.1

Additional Details

Type: Single Family, Single Family Residence

Zip Code: 01475

Parking

Garage: 2

Garage Capacity: 4

Parking: Attached, Garage Door Opener, Garage Faces Side, Off Street, Unpaved

Parking Spaces: 4

Rooms and Dimensions

Total Rooms: 7

Contact: LRG Boston at (617) 233-5800

LRGBOSTON.COM

355 Boylston St. Boston, MA 02116

Map

Photos