Luxury Real Estate Group Boston > Worcester > 340 Harding St.

LRG Boston

(617) 233-5800

355 Boylston St

Boston, Ma 02116

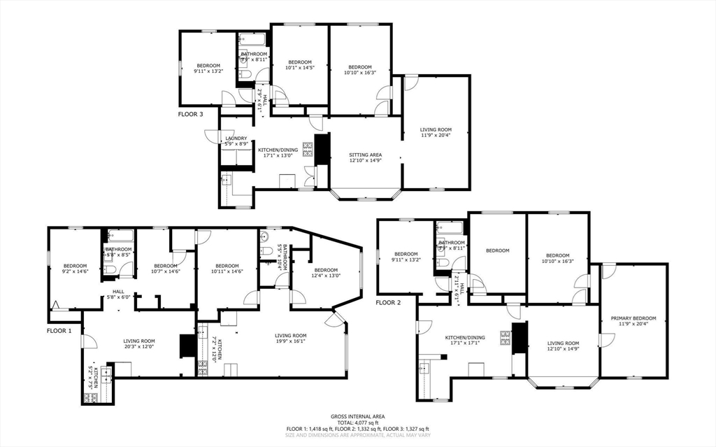
340 Harding St.

Worcester, MA

Property Description

Discover this versatile multi-family property which offers an excellent opportunity for investors. Rental income and room for value-add potential. The building includes two 2-bedroom units on the first floor, a generous 4-bedroom unit on the second, and a comfortable 3-bedroom unit on the third. In-unit laundry for added convenience. Fully rented with several recent updates, this property provides immediate cash flow. Features a small off-street parking area, and ample on-street parking. Ideally located near public transportation, schools, shopping, and local amenities, and just minutes from Polar Park. This property blends urban accessibility with classic New England appeal. Don’t miss this excellent opportunity to begin or expand your Worcester investment portfolio with a property that delivers flexibility, income, and long-term potential. Group showing this Saturday, Nov 1 12-2PM, Reach out to agent if interested in attending.

offered at

$799,000

  • Listing ID: 73449346
  • Bedrooms: 11
  • Full Baths: 4
  • Living Area: 5,064 sqft Convert
  • Lot Size: 2,021 sqft Convert
  • Acres: 0.05

Additional Details

Type: Multi-Family, 4 Family

Zip Code: 01610

Levels: 4

Parking

Garage Capacity: 3

Parking: Paved Drive, Off Street, Paved

Parking Spaces: 3

Rooms and Dimensions

Total Units: 4

Total Floors: 4

Total Rooms: 22

Contact: LRG Boston at (617) 233-5800

LRGBOSTON.COM

355 Boylston St. Boston, MA 02116

Map

Photos