Luxury Real Estate Group Boston > Methuen > 69 Broadway

LRG Boston

(617) 233-5800

355 Boylston St

Boston, Ma 02116

69 Broadway

Methuen, MA

Property Description

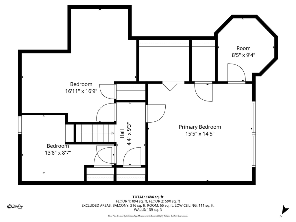
**Showings start at Open House** Discover a unique 3 Unit multi-family/mixed use opportunity featuring 2 residential units with Certificate of Lead Compliance and 1 studio/commercial space in a prime location just off Route 28 with quick access to Routes 113, 123, 495 & 93. Unit 1 on the first level offers 2 bedrooms and 1 baths. Unit 2 spans the 2nd and 3rd floors with 4 bedrooms, bonus room, and 1 bath and private balcony. The studio/commercial unit includes a kitchenette, 3/4 bath, living area —ideal for rental income or business use. The shared basement common area features laundry, an additional 3/4 bath, a finished room, and a bonus walkout space. Plenty of off-street parking with 8± spaces. Close to shopping, dining, and local amenities—perfect for investors or owner-occupants seeking versatility and value.

offered at

$775,000

  • Listing ID: 73449373
  • Bedrooms: 6
  • Full Baths: 3
  • Half Baths: 1
  • Living Area: 2,923 sqft Convert
  • Lot Size: 5,850 sqft Convert
  • Acres: 0.13

Additional Details

Type: Multi-Family, 3 Family - 3 Units Up/Down

Zip Code: 01844

Levels: 4

Parking

Garage: 1

Garage Capacity: 8

Parking: Paved Drive, Off Street

Parking Spaces: 8

Rooms and Dimensions

Total Units: 3

Total Floors: 4

Total Rooms: 13

Contact: LRG Boston at (617) 233-5800

LRGBOSTON.COM

355 Boylston St. Boston, MA 02116

Map

Photos