Luxury Real Estate Group Boston > Winchendon > 49 Doyle Avenue

LRG Boston

(617) 233-5800

355 Boylston St

Boston, Ma 02116

49 Doyle Avenue

Winchendon, MA

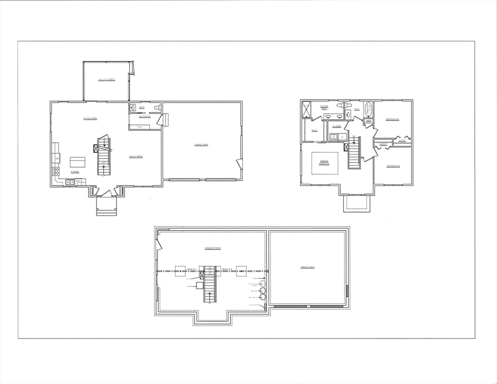
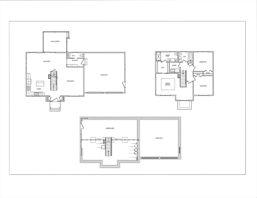
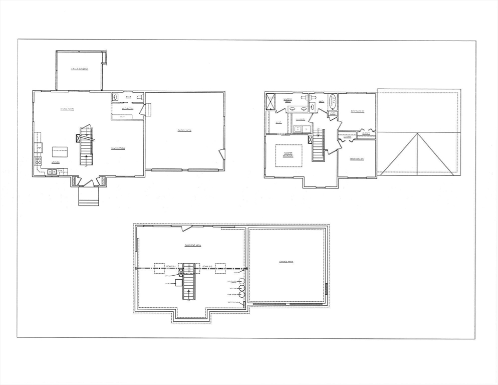
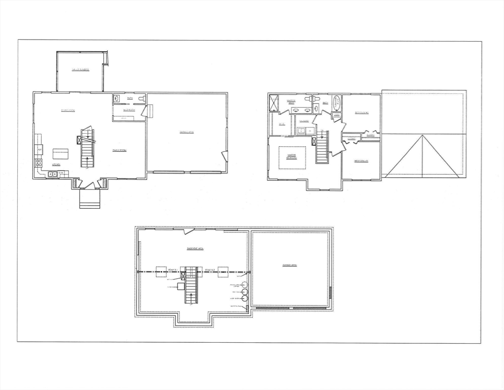
Property Description

Discover this stunning brand-new Colonial set on 4.5 acres in the beautiful Doyle Estates neighborhood. This quality-built home offers 1,834 sq. ft. of stylish living space. The open-concept layout features luxury vinyl plank flooring, a spacious living room and a convenient mudroom with a custom bench, storage, and half bath. The fully kitchen will have granite countertops, maple cabinetry and an island perfect for entertaining, while the dining area opens to a 12x14 deck overlooking the peaceful backyard. Upstairs, the luxurious primary suite includes a tray ceiling, sitting area, dual-sink bathroom and barn door to a walk-in closet. Two additional bedrooms, a full bath and laundry room complete the second floor. Enjoy central A/C, an attached 2-car garage, and a walk-out basement ready for future expansion. Doyle Estates—where quality, comfort, and privacy come together in this new neighborhood. This house is ready for buyers personal interior selections! Late December completion.

offered at

$559,900

  • Listing ID: 73449414
  • Bedrooms: 3
  • Full Baths: 2
  • Half Baths: 1
  • Living Area: 1,834 sqft Convert
  • Lot Size: 196,020 sqft Convert
  • Acres: 4.5

Additional Details

Type: Single Family, Single Family Residence

Zip Code: 01475

Parking

Garage: 2

Garage Capacity: 4

Parking: Attached, Garage Door Opener, Garage Faces Side, Off Street, Unpaved

Parking Spaces: 4

Rooms and Dimensions

Total Rooms: 7

Contact: LRG Boston at (617) 233-5800

LRGBOSTON.COM

355 Boylston St. Boston, MA 02116

Map

Photos