Luxury Real Estate Group Boston > Somerville > 4 Cross St

LRG Boston

(617) 233-5800

355 Boylston St

Boston, Ma 02116

4 Cross St

Somerville, MA

Property Description

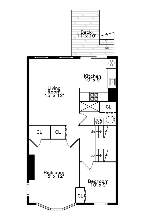
Corner vacant two-family row house near Cross Street and Broadway with vinyl siding and recently replaced composite decks and treads at the rear. Roof features slate and membrane, recently repaired, with a rebuilt chimney. The property includes a paved rear area and a basement with high ceilings, a concrete floor, a washer/dryer, and extra storage. The first-floor unit offers 2 bedrooms, 1 bath, hardwood floors, and a sliding door to an exclusive deck. The upper two-story unit includes 6 rooms, 3.5 bedrooms, 2 baths, and an open floor plan with deck access off the kitchen. Gas heating systems (one newer), separate water heaters, updated electric with breakers and two meters. Replaced main water line to 1 inch. A well-located and affordable two-family ready for new owners to add value and enjoy strong rental potential.

offered at

$995,000

  • Listing ID: 73449440
  • Bedrooms: 5
  • Full Baths: 3
  • Living Area: 1,953 sqft Convert
  • Lot Size: 1,800 sqft Convert
  • Acres: 0.04

Additional Details

Type: Multi-Family, Multi Family

Area: East Somerville

Zip Code: 02145

Levels: 3

Parking

Parking: On Street

Rooms and Dimensions

Total Units: 2

Total Floors: 3

Total Rooms: 10

Contact: LRG Boston at (617) 233-5800

LRGBOSTON.COM

355 Boylston St. Boston, MA 02116

Map

Photos