Luxury Real Estate Group Boston > Watertown > 654 Main St

LRG Boston

(617) 233-5800

355 Boylston St

Boston, Ma 02116

654 Main St

Watertown, MA

Property Description

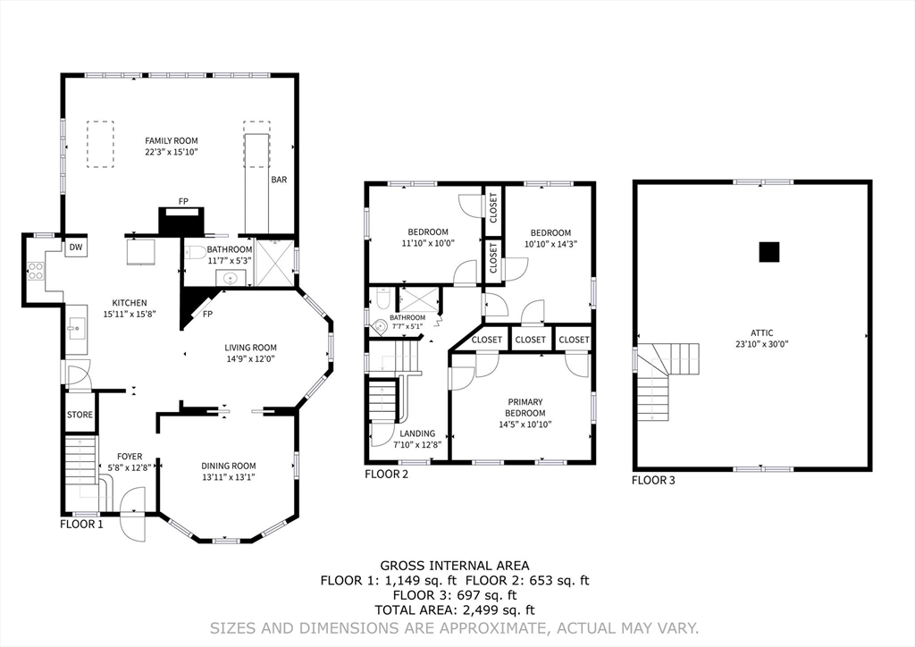
This meticulously maintained and lovingly cared for Colonial sits on an oversized lot in prime location. The property boasts a blend of tasteful updates while keeping its historic charm intact. Bright and airy throughout with an abundance of windows, this home offers a flexible floor plan and is great for entertaining guests. The main floor includes a formal living room, separate dining room with fireplace, kitchen with wood burning stove as well as a massive family room with a built in bar and full bathroom. The second floor consists of 3 well proportioned bedrooms and a second bathroom. There is also the possibility of expansion into the third floor walk up that boasts high ceilings and picturesque windows. Plenty of parking in two separate driveways and a garage. Those looking to enjoy the outdoors can relax on a brand new composite deck, large patio or well landscaped yard!

offered at

$4,000

  • Status: Price Change
  • Listing ID: 73449446
  • Bedrooms: 3
  • Full Baths: 2
  • Living Area: 1,980 sqft Convert
  • Lot Size: 8,830 sqft Convert

Additional Details

Type: Rental, Single Family Residence

Zip Code: 02472

Unit Level: 1

Parking

Garage Capacity: 3

Parking Spaces: 3

Rooms and Dimensions

Total Rooms: 6

Contact: LRG Boston at (617) 233-5800

LRGBOSTON.COM

355 Boylston St. Boston, MA 02116

Map

Photos