Luxury Real Estate Group Boston > Cohasset > 119 Pleasant Street

LRG Boston

(617) 233-5800

355 Boylston St

Boston, Ma 02116

119 Pleasant Street

Cohasset, MA

Property Description

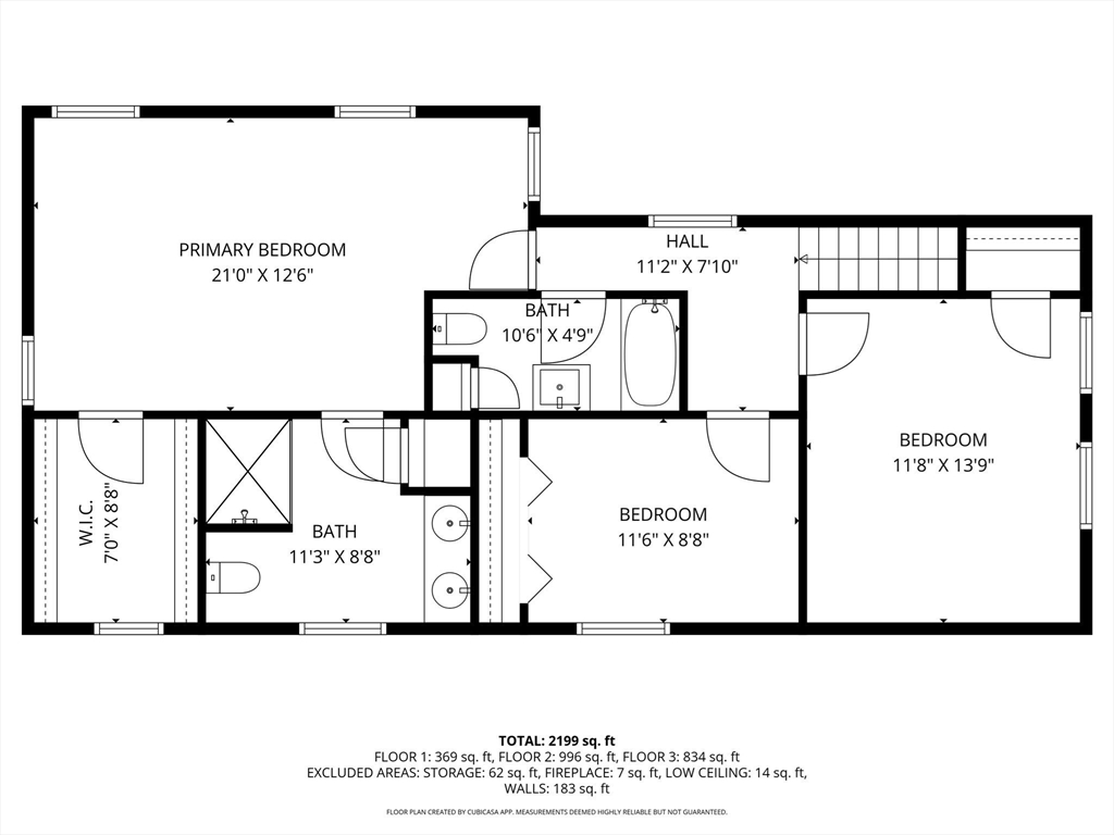
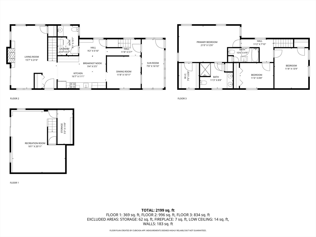
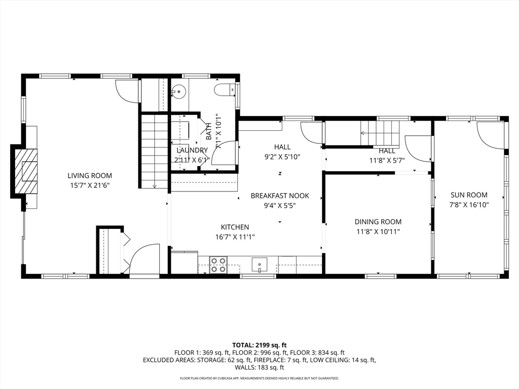
Welcome to this picturesque NE farmhouse-style home conveniently situated in the heart of Cohasset. The front sunroom entrance leads to this turnkey home which offers an open floor plan, high ceilings and gleaming hardwood floors. The chefs’ kitchen features gas cooking, a custom backsplash, stainless steel appliances and an eat-in area. Adjacent to the kitchen is a formal dining room, ideal for hosting future holiday meals and entertaining. The living room is off the kitchen with its custom-built-in bookshelves and mantle and a cozy gas fireplace. A large slider offers an abundance of natural light and leads to a private deck overlooking a private yard. The second floor features the guest bathroom and three bedrooms, one of which is ann oversized primary suite with a spacious bedroom, bath with a large shower, double vanity, and walk-in closet. The finished lower level includes a gymnasium or playroom, storage and a slider to the backyard, hot tub, and patio. See attached video!!!

offered at

$1,199,000

  • Listing ID: 73449530
  • Bedrooms: 3
  • Full Baths: 2
  • Half Baths: 1
  • Living Area: 2,700 sqft Convert
  • Lot Size: 9,845 sqft Convert
  • Acres: 0.23

Additional Details

Type: Single Family, Single Family Residence

Zip Code: 02025

Parking

Garage Capacity: 3

Parking: Off Street

Parking Spaces: 3

Rooms and Dimensions

Total Rooms: 7

Contact: LRG Boston at (617) 233-5800

LRGBOSTON.COM

355 Boylston St. Boston, MA 02116

Map

Photos