Luxury Real Estate Group Boston > Cambridge > 281 River St #3

LRG Boston

(617) 233-5800

355 Boylston St

Boston, Ma 02116

281 River St #3

Cambridge, MA

Property Description

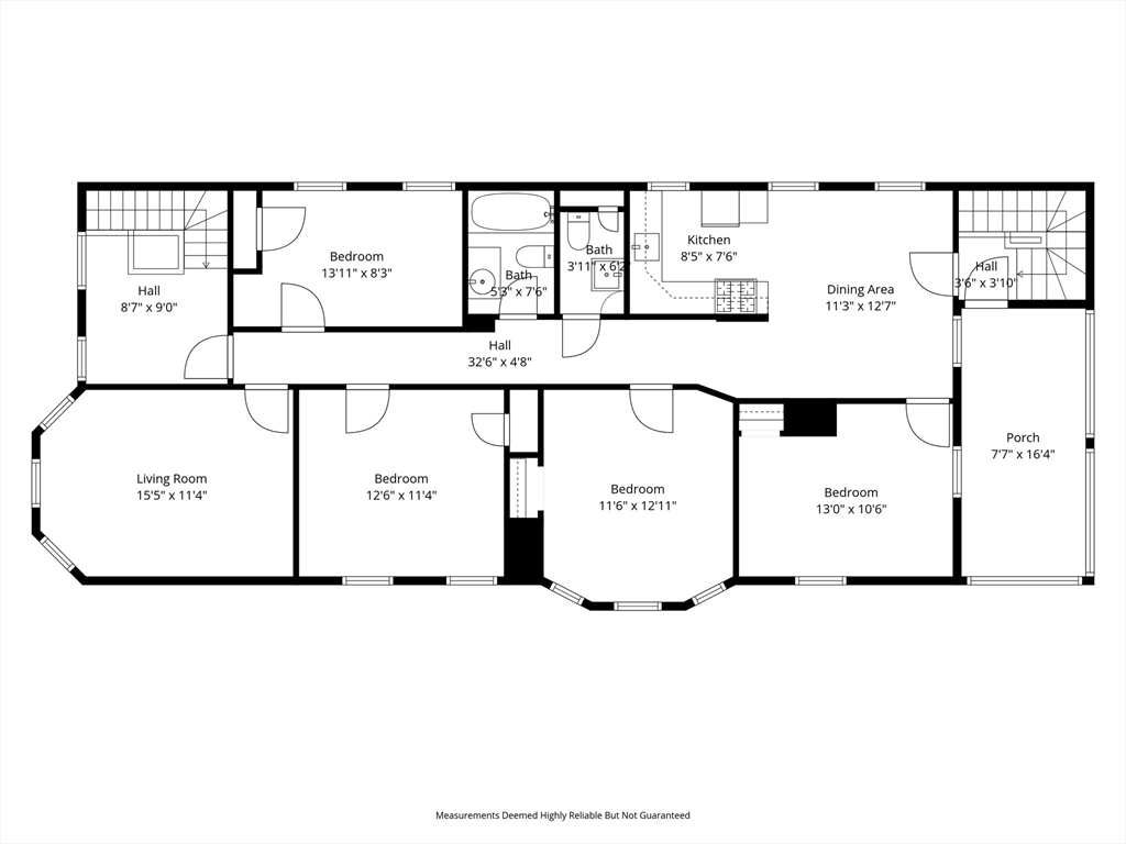
Freshly Painted and New flooring Installed. This Top Floor rental unit is part of a 3 unit building. High ceilings & plenty of sun light. Conveniently located across the street from WholeFoods & Walgreens. You're also very close to Central Square where you will find Planet Fitness, H Mart, and some the best Coffee Shops, Restaurants and Bars in Cambridge. This unit has a 4 Bedrooms and still has a Living Room, Dining Room, and two bathrooms, One Full and One Half bath. There is a back deck exclusive to this unit. Quality Cabinets, Gas Cooking, Granite Countertops. Common Laundry in the Basement shared by the 3 units.

offered at

$3,500

  • Status: New
  • Listing ID: 73450373
  • Bedrooms: 4
  • Full Baths: 1
  • Half Baths: 1
  • Living Area: 1,144 sqft Convert

Additional Details

Type: Rental, Condominium

Zip Code: 02139

Unit Level: 3

Rooms and Dimensions

Total Rooms: 8

Contact: LRG Boston at (617) 233-5800

LRGBOSTON.COM

355 Boylston St. Boston, MA 02116

Map

Photos