Luxury Real Estate Group Boston > Bridgewater > 585 Forest St.

LRG Boston

(617) 233-5800

355 Boylston St

Boston, Ma 02116

585 Forest St.

Bridgewater, MA

Property Description

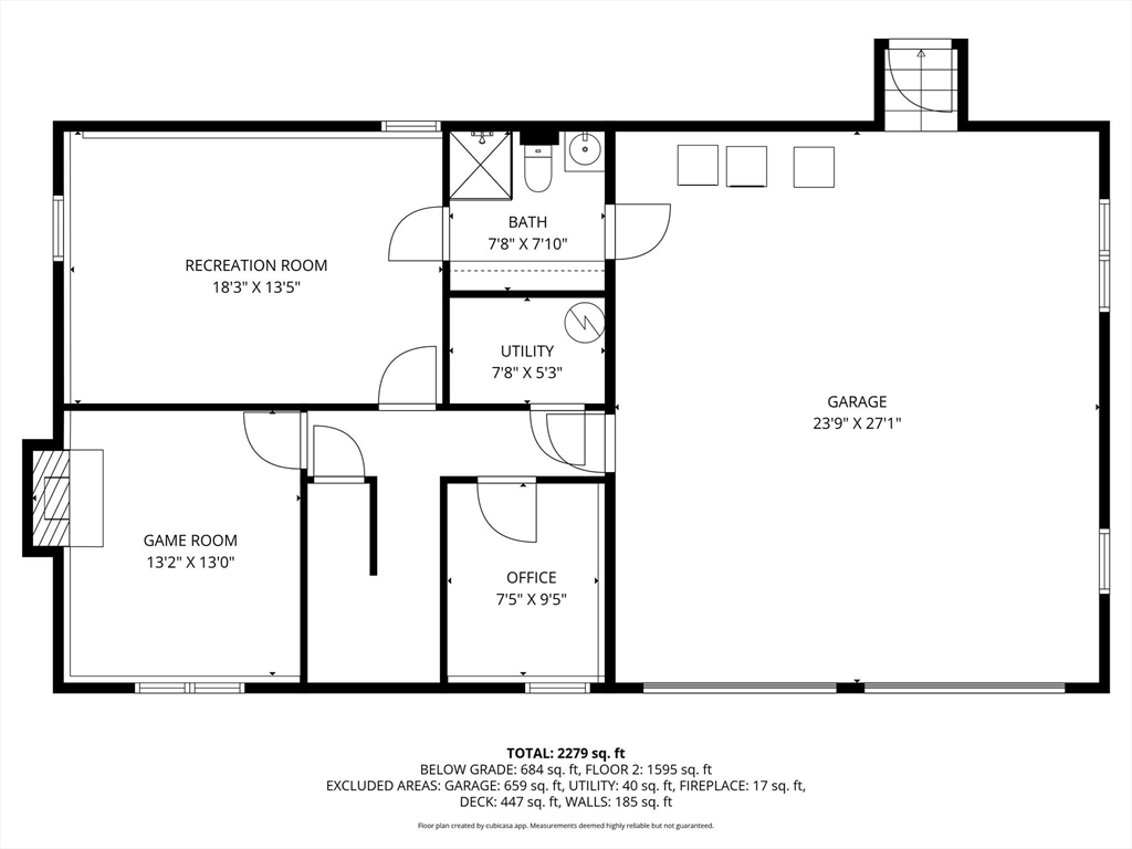
Terrific Bridgewater location! This oversized raised ranch offers almost 2,300 sq ft of living space on a beautiful half-acre lot. The large backyard is perfect for entertaining with an in-ground pool & basketball court. Inside, enjoy an updated kitchen with granite countertops & stainless steel appliances, gorgeous hardwood floors throughout, & an open floor plan featuring a cozy living room with fireplace, a dining room with a gorgeous wood-vaulted ceiling with French doors leading to a maintenance-free deck. The main bath is beautifully updated with a tiled shower, & the spacious primary bedroom includes an en suite half bath. Hardwood floors lie beneath ALL upstairs carpeting. The finished lower level offers a family room, bonus room, a home office, & a full bath with direct access to the 24x27 two-car garage...ideal for multi-generational living, a young adult suite, or live-in au pair. A warm & inviting home offering space, comfort & endless possibilities!

offered at

$675,000

  • Status: New
  • Listing ID: 73450402
  • Bedrooms: 4
  • Full Baths: 2
  • Half Baths: 1
  • Living Area: 2,279 sqft Convert
  • Lot Size: 21,378 sqft Convert
  • Acres: 0.49

Additional Details

Type: Single Family, Single Family Residence

Zip Code: 02324

Parking

Garage: 2

Garage Capacity: 4

Parking: Under, Off Street

Parking Spaces: 4

Rooms and Dimensions

Total Rooms: 10

Contact: LRG Boston at (617) 233-5800

LRGBOSTON.COM

355 Boylston St. Boston, MA 02116

Map

Photos