Luxury Real Estate Group Boston > Raynham > 47 Fairbanks Rd

LRG Boston

(617) 233-5800

355 Boylston St

Boston, Ma 02116

47 Fairbanks Rd

Raynham, MA

Property Description

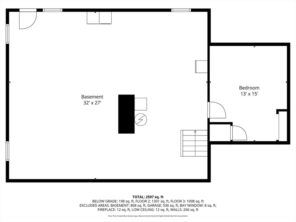
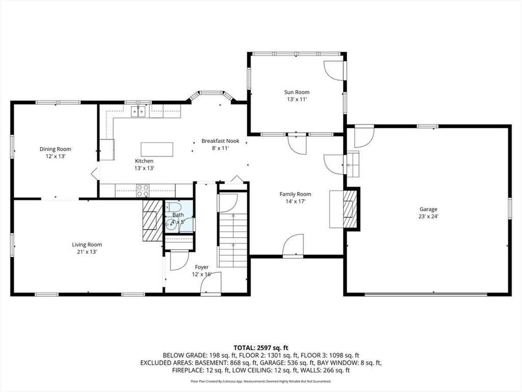
If space and location are at the top of your list, this home is not to be missed! Lovingly maintained, sitting on almost an acre of land, in a beautiful cul-de-sac neighborhood, just moments from major highways and local amenities. For those who love to host, the first floor provides exceptional space with a formal dining room, an oversized family room, living room (with access to the 2-car garage), beautiful kitchen, sunroom and a convenient half bath. Upstairs, you’ll find a full bath and four generous bedrooms, including a spacious primary suite with double closets and a private bathroom. And the backyard...amazing! The expansive patio and gazebo create the perfect setting for gatherings, relaxation, or dining. The full basement includes a fireplace offering a great expansion potential, along with a finished room ideal for a home office. Recent updates include: roof, oil tank, boiler, water heater, patio, Trex deck, central air, and gorgeous kitchen!

offered at

$699,000

  • Status: New
  • Listing ID: 73450466
  • Bedrooms: 4
  • Full Baths: 2
  • Half Baths: 1
  • Living Area: 2,394 sqft Convert
  • Lot Size: 42,266 sqft Convert
  • Acres: 0.97

Additional Details

Type: Single Family, Single Family Residence

Area: Raynham Center

Zip Code: 02767

Parking

Garage: 2

Garage Capacity: 4

Parking: Attached, Paved Drive, Paved

Parking Spaces: 4

Rooms and Dimensions

Total Rooms: 10

Contact: LRG Boston at (617) 233-5800

LRGBOSTON.COM

355 Boylston St. Boston, MA 02116

Map

Photos