Luxury Real Estate Group Boston > Kingston > 2 Clinton Ter

LRG Boston

(617) 233-5800

355 Boylston St

Boston, Ma 02116

2 Clinton Ter

Kingston, MA

Property Description

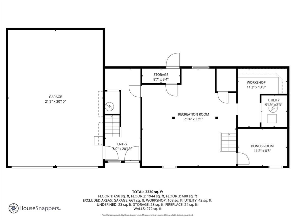
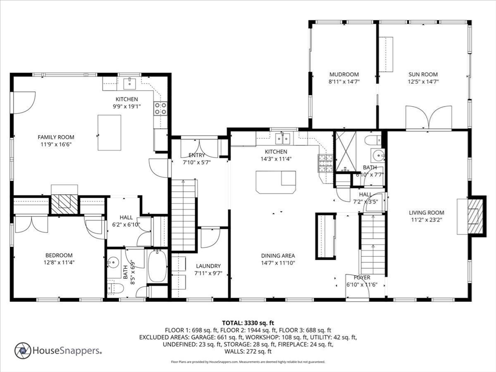
Location! Expanded Cape with full legal in-law apartment set on a cul-de-sac in the center of highly desired neighborhood. A warm welcome invites you into the living room with the ambiance of the pellet stove and French doors that lead into the sunroom. The kitchen hosts a center island and large dining area, perfect for family gatherings and entertaining. 1st floor 3/4 bath & laundry room offers convenience and storage. Upstairs you’ll find the spacious primary with fireplace, 2 additional bedrooms and remodeled full bath. Lower level includes a huge rec room, bonus room, built-in workshop area & mudroom w/plenty of added storage. Adjoining the 1st floor, the in-law apartment offers an open floor plan, kitchen with island, gas fireplace, bedroom, full bath, private attic and separate entrance. Relax on the farmer's porch, dine on the patio, or cool off in the inground pool. Extra features: oversized 2 car garage, Trex decking, irrigation system, solar panels and gardens galore!

offered at

$1,079,000

  • Listing ID: 73452687
  • Bedrooms: 4
  • Full Baths: 3
  • Living Area: 3,330 sqft Convert
  • Lot Size: 30,000 sqft Convert
  • Acres: 0.69

Additional Details

Type: Single Family, Single Family Residence

Zip Code: 02364

Parking

Garage: 2

Garage Capacity: 4

Parking: Attached, Under, Storage, Workshop in Garage, Insulated, Off Street, Stone/Gravel

Parking Spaces: 4

Rooms and Dimensions

Total Rooms: 11

Contact: LRG Boston at (617) 233-5800

LRGBOSTON.COM

355 Boylston St. Boston, MA 02116

Map

Photos