Luxury Real Estate Group Boston > Westford > 164 Main

LRG Boston

(617) 233-5800

355 Boylston St

Boston, Ma 02116

164 Main

Westford, MA

Property Description

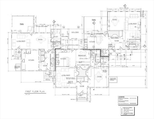
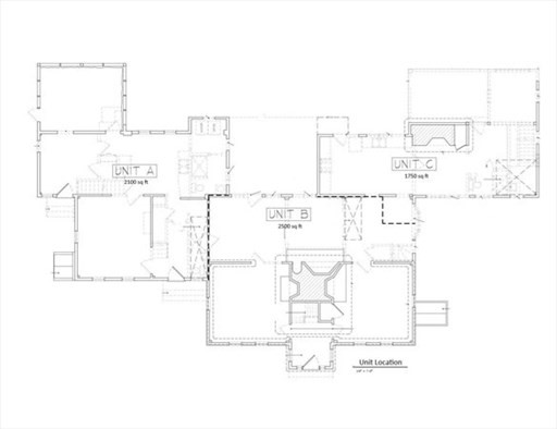
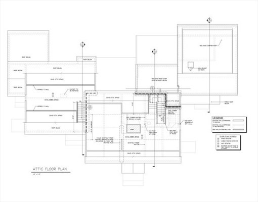
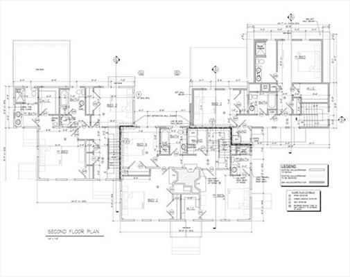
Exclusive Customizable Condominium Complex, Conveniently Close to Westford’s Town Center. This Fully Restored Read Farm Circa 1764 is Nestled on 2.17 Acres Offering over 6,350+ sq ft in Three Side-by-Side Townhomes Featuring a Wrap-Around Driveway and Play Court for Endless Possibilities. Renovated down to the Studs. Each Unit Features 9+ Rooms, 2.5 Baths, Private Entries, Formal Foyers, Contemporary Kitchens Including Quartz Countertops, Stainless Steel Energy Efficient Appliances, Open Concept Living Spaces and Hardwood Floors Throughout. The 2nd Floors have Dedicated Laundry Rooms, Walk-In Closets, En Suite Bathrooms with Double Vanity Sinks and Ceramic Tiled Showers. Each with 2 Heat & AC Zones Individually Metered Water & Electric. Great Commuting Location with Easy Access to Westford School Systems & Town Amenities and Conveniently Close to Major Routes 495, 3, 110 2, 225, 40 & 4

offered at

$2,325,000

  • Listing ID: 73452873
  • Bedrooms: 7
  • Full Baths: 6
  • Half Baths: 3
  • Living Area: 6,350 sqft Convert
  • Lot Size: 94,525 sqft Convert
  • Acres: 2.17

Additional Details

Type: Multi-Family, 3 Family - 3 Units Side by Side

Zip Code: 01886

Levels: 6

Parking

Garage Capacity: 10

Parking: Paved Drive, Shared Driveway, Off Street, Guest

Parking Spaces: 10

Rooms and Dimensions

Total Units: 3

Total Floors: 6

Total Rooms: 28

Contact: LRG Boston at (617) 233-5800

LRGBOSTON.COM

355 Boylston St. Boston, MA 02116

Map

Photos