Luxury Real Estate Group Boston > Fall River > 700 Shore Dr 6-604

LRG Boston

(617) 233-5800

355 Boylston St

Boston, Ma 02116

700 Shore Dr 6-604

Fall River, MA

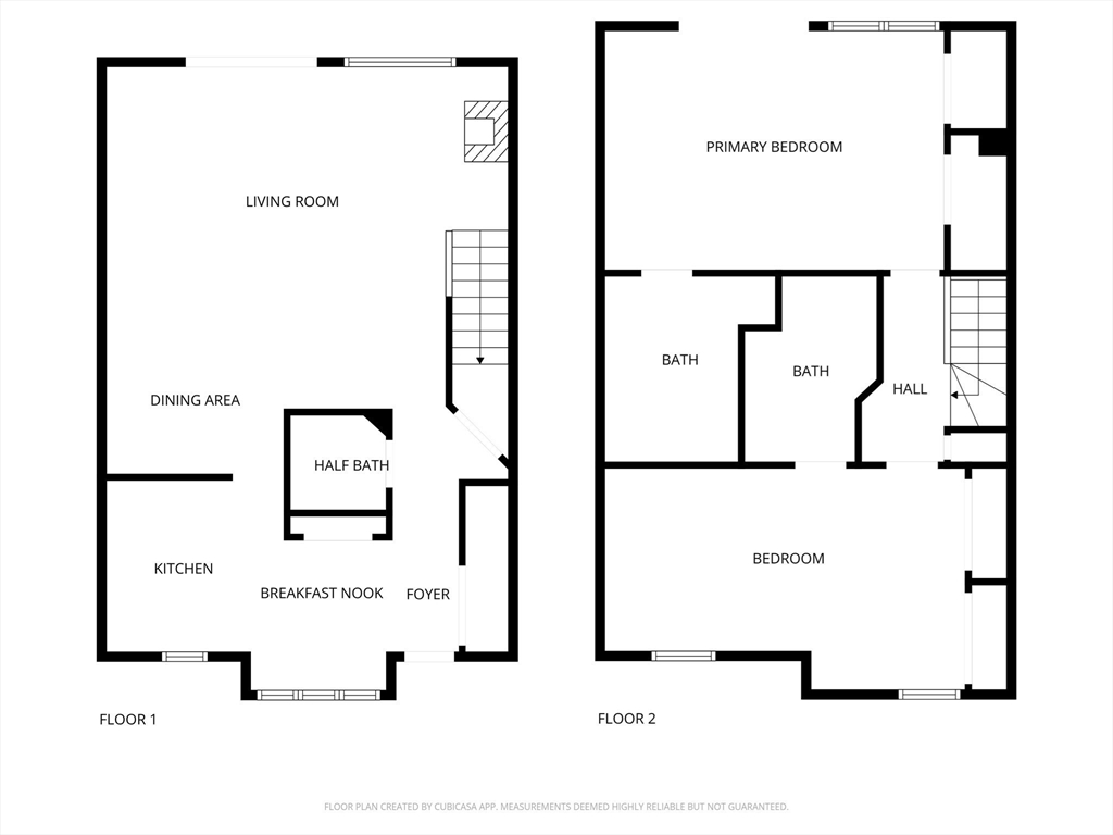
Property Description

Live the waterfront lifestyle you’ve been dreaming of! This spacious 2 bed, 2.5 bath townhouse at The Landing at South Park offers panoramic, unobstructed Mount Hope Bay views from two private balconies. Wake up to sunrises, unwind with sunsets, and watch fireworks sparkle across the water—all from home. The bright kitchen features a window-seat breakfast nook and pantry, while the open-concept living room offers a fireplace, dining area and slider to your waterfront deck. Upstairs, the primary suite feels like a retreat with double closets, a jetted tub, and its own balcony. The second bedroom includes a private full bath. Fresh paint on 1st floor updates include newer central air, fridge, LVP flooring, lighting, and more. Enjoy resort-style amenities— inground pool, clubhouse, gym, sauna/steam—and the convenience of a 1-car garage plus a dedicated second parking space. Minutes to local dining, the commuter rail/T and Routes 195/24, this is coastal living at its finest.

offered at

$460,000

  • Status: New
  • Listing ID: 73453414
  • Bedrooms: 2
  • Full Baths: 2
  • Half Baths: 1
  • Living Area: 1,399 sqft Convert

Additional Details

Type: Condo, Condominium

Style: Townhouse

Zip Code: 02721

HOA Fee: $777

Living Levels: 2

Unit Level: 2

Parking

Garage: 1

Garage Capacity: 1

Parking: Attached, Assigned, Paved

Parking Spaces: 1

Rooms and Dimensions

Total Units: 140

Total Floors: 2

Total Rooms: 5

Contact: LRG Boston at (617) 233-5800

LRGBOSTON.COM

355 Boylston St. Boston, MA 02116

Map

Photos