Luxury Real Estate Group Boston > Boston > 91-93 Bynner St #9

LRG Boston

(617) 233-5800

355 Boylston St

Boston, Ma 02116

91-93 Bynner St #9

Boston, MA

Property Description

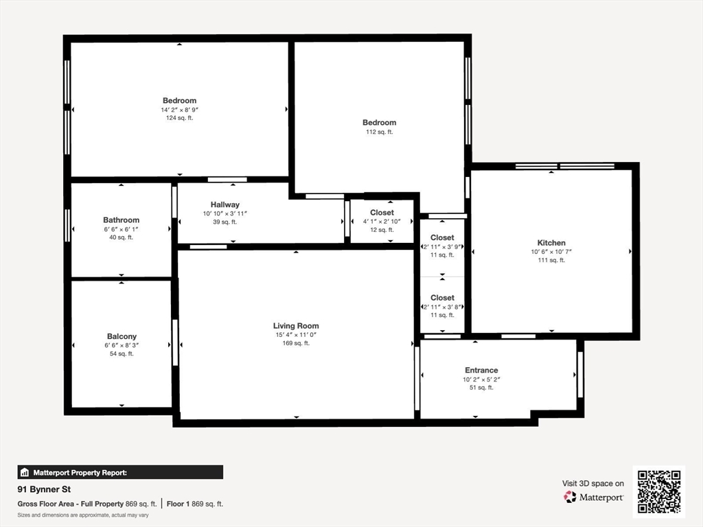
AVAILABLE NOW – Renovated, lead-abated unit with stunning skyline views. Heat and hot water included. Free laundry in the building. This bright and spacious apartment features two full-size bedrooms with closets, a large living room with access to a private balcony overlooking the skyline, a full bathroom, and a modern eat-in kitchen with maple cabinets, granite counters, and stainless-steel appliances (dishwasher, microwave, range, and fridge). Original hardwood floors throughout. The unit can be rented furnished or unfurnished; if furnished, add $300 per month. Prime JP location near Whole Foods, Canary Square, Tres Gatos, Jamaica Pond, and the Longwood Medical Area, with easy access to the Green Line, 39 Bus, and Orange Line (Jackson or Stonybrook).

offered at

$2,700

  • Status: New
  • Listing ID: 73453979
  • Bedrooms: 2
  • Full Baths: 1
  • Living Area: 776 sqft Convert

Additional Details

Type: Rental, Condominium

Area: Jamaica Plain

Zip Code: 02130

Unit Level: 3

Rooms and Dimensions

Total Rooms: 5

Contact: LRG Boston at (617) 233-5800

LRGBOSTON.COM

355 Boylston St. Boston, MA 02116

Map

Photos