Luxury Real Estate Group Boston > Peabody > 3 Ralph Rd

LRG Boston

(617) 233-5800

355 Boylston St

Boston, Ma 02116

3 Ralph Rd

Peabody, MA

Property Description

Desirable South Peabody Location! Pride of ownership shines in this well-cared-for, one-owner ranch nestled in one of Peabody’s most sought-after neighborhoods. Enjoy quick and easy access to Routes 1, 95, and 128 while still tucked away on a quiet residential street. Major updates are already done, newer roof, heating system, and hot water tank, making this a low-maintenance home with strong bones. The property features an irrigation system, central air, and a cozy enclosed porch overlooking the beautifully landscaped backyard, perfect for morning coffee or evening relaxation. Inside, you’ll find solid original cabinetry and bathrooms ready for your personal touches. The finished, heated, and air-conditioned lower level offers plenty of space to spread out, ideal for a family room, play area, home gym, or office. A great opportunity to move into a prime Peabody neighborhood and make this home your own! First Showings start at Open House Saturday and Sun 11:30am to 1:00pm.

offered at

$599,000

  • Status: New
  • Listing ID: 73454320
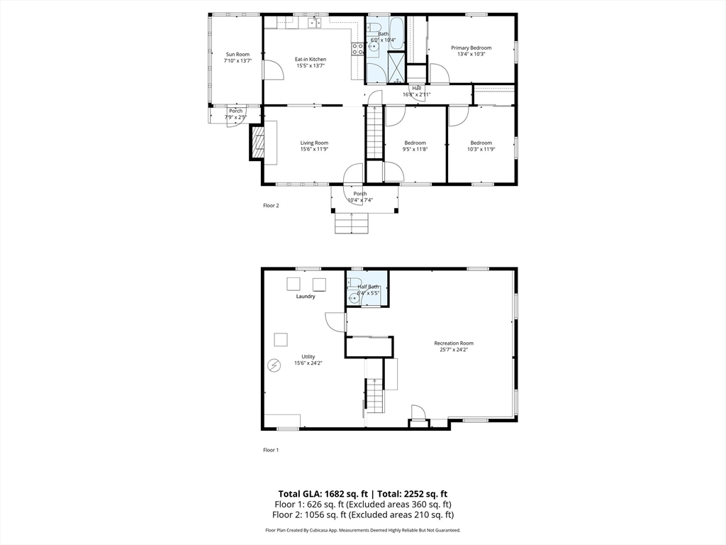
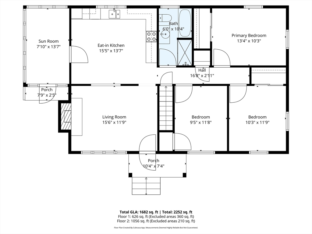
  • Bedrooms: 3
  • Full Baths: 1
  • Half Baths: 1
  • Living Area: 1,682 sqft Convert
  • Lot Size: 12,079 sqft Convert
  • Acres: 0.28

Additional Details

Type: Single Family, Single Family Residence

Zip Code: 01960

Parking

Garage Capacity: 3

Parking: Paved Drive, Off Street, Paved

Parking Spaces: 3

Rooms and Dimensions

Total Rooms: 5

Contact: LRG Boston at (617) 233-5800

LRGBOSTON.COM

355 Boylston St. Boston, MA 02116

Map

Photos