Luxury Real Estate Group Boston > Kingston > 19 Holmes Avenue

LRG Boston

(617) 233-5800

355 Boylston St

Boston, Ma 02116

19 Holmes Avenue

Kingston, MA

Property Description

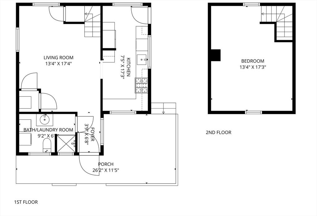
Enjoy water views from every room of this charming cottage located just 3 houses from the bay in scenic Rocky Nook, one of the South Shore's best-kept secrets! Inside, this cozy home features a large living room, kitchen, & full bath with laundry on the main level, with the one bedroom occupying the entire upstairs. Outside, there is a large deck with more water views and a two-story detached garage that offers ample parking / storage space as well as potential for conversion to ADU / living space down the road. FABULOUS LOCATION less than 100 yards from Kingston Bay (but not in the flood zone, so no flood insurance required), just 1 mile from Gray's Beach Park, 2 miles from Route 3, and 3 miles from the Kingston Commuter Rail station. And the property is already connected to town sewer. Bring your vision and make your best offer! Property must be on the market for at least 10 days - please submit offers by 5pm on Monday, November 24.

offered at

$425,000

  • Listing ID: 73454630
  • Bedrooms: 1
  • Full Baths: 1
  • Living Area: 652 sqft Convert
  • Lot Size: 3,484 sqft Convert
  • Acres: 0.08

Additional Details

Type: Single Family, Single Family Residence

Zip Code: 02364

Parking

Garage: 2

Garage Capacity: 4

Parking: Detached, Off Street

Parking Spaces: 4

Rooms and Dimensions

Total Rooms: 3

Contact: LRG Boston at (617) 233-5800

LRGBOSTON.COM

355 Boylston St. Boston, MA 02116

Map

Photos