Luxury Real Estate Group Boston > Bolton > 93 Vaughn Hill Rd

LRG Boston

(617) 233-5800

355 Boylston St

Boston, Ma 02116

93 Vaughn Hill Rd

Bolton, MA

Property Description

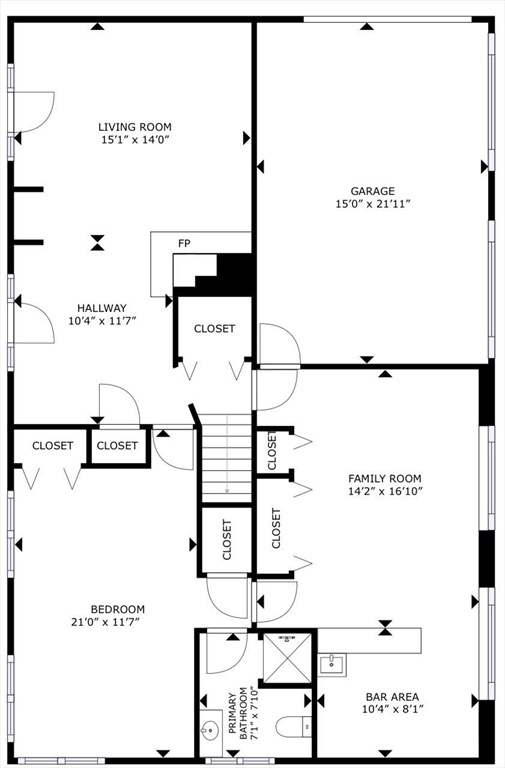
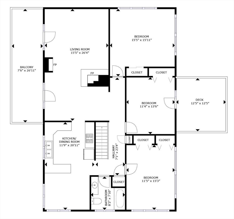
This contemporary-style home offers a versatile floor plan perfect for multi-generational living. Expansive windows and soaring cathedral ceilings fill the space with natural light, complementing the open-concept design.The ground level features a comfortable living room, bedroom, full bathroom, and a convenient kitchen/bar area—ideal for guests or an in-law suite. The upper level includes a bright cabinet filled kitchen, spacious living room, three bedrooms, and a full bath. Enjoy cozy evenings by one of the two fireplaces, or take in breathtaking sunset views from the large deck. Additional highlights include a one-car garage, and a shed for all your storage needs. The home has one acre of land, offering plenty of space and privacy.

offered at

$659,900

  • Listing ID: 73454746
  • Bedrooms: 4
  • Full Baths: 2
  • Living Area: 2,576 sqft Convert
  • Lot Size: 55,757 sqft Convert
  • Acres: 1.28

Additional Details

Type: Single Family, Single Family Residence

Zip Code: 01740

Parking

Garage: 1

Garage Capacity: 5

Parking: Under, Paved Drive, Off Street

Parking Spaces: 5

Rooms and Dimensions

Total Rooms: 8

Contact: LRG Boston at (617) 233-5800

LRGBOSTON.COM

355 Boylston St. Boston, MA 02116

Map

Photos