Luxury Real Estate Group Boston > New Bedford > 288 Lawrence St

LRG Boston

(617) 233-5800

355 Boylston St

Boston, Ma 02116

288 Lawrence St

New Bedford, MA

Property Description

Nestled at 288 Lawrence St, New Bedford, MA, this inviting home stands ready to welcome its next chapter. This single-family residence offers a blend of classic charm and modern convenience. Imagine mornings spent on the porch, perhaps with a cup of coffee, watching the world awaken around you. This outdoor space presents an opportunity for relaxation and a chance to connect with the neighborhood. Inside, the residence offers 1496 square feet of living area, encompassing four bedrooms and two full bathrooms. The layout provides ample space for comfortable living, with each room offering a fresh canvas for personal expression and design. The 8002 square feet lot area provides a generous outdoor space for activities and enjoyment. Built in 1918, this residence carries a sense of history, waiting to be embraced by someone new.

offered at

$435,000

  • Listing ID: 73456424
  • Bedrooms: 4
  • Full Baths: 2
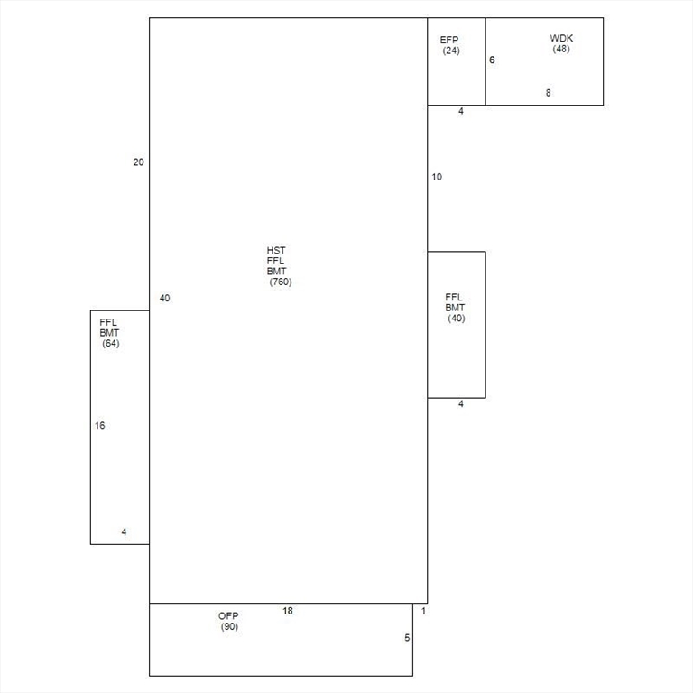
  • Living Area: 1,496 sqft Convert
  • Lot Size: 8,002 sqft Convert
  • Acres: 0.18

Additional Details

Type: Single Family, Single Family Residence

Area: Far North

Zip Code: 02745

Parking

Garage Capacity: 2

Parking: Off Street, Tandem

Parking Spaces: 2

Rooms and Dimensions

Total Rooms: 8

Contact: LRG Boston at (617) 233-5800

LRGBOSTON.COM

355 Boylston St. Boston, MA 02116

Map

Photos