Luxury Real Estate Group Boston > Athol > 102 Lyons Hill Rd

LRG Boston

(617) 233-5800

355 Boylston St

Boston, Ma 02116

102 Lyons Hill Rd

Athol, MA

Property Description

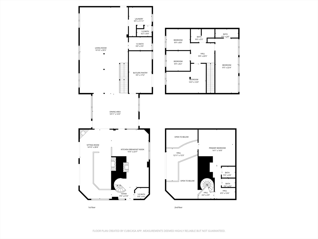
Discover unmatched privacy and sweeping mountain views on 230+ acres with 2,000+ ft of pristine Secret Lake frontage. Custom built as a fully self-sufficient luxury retreat, this post-and-beam Contemporary offers active solar power, an artesian well, and a generator for true year-round independence. Inside, soaring ceilings, exposed beams, and a massive floor-to-ceiling stone fireplace create a warm and timeless atmosphere. The gourmet kitchen features a Grand Herald stove and a full prep kitchen—ideal for hosting, entertaining, or creating incredible meals against a stunning natural backdrop. The private main suite includes its own balcony with breathtaking views. Multiple decks and an interior balcony capture light, scenery, and serenity from every angle. Heated 2-car garage plus additional storage for vehicles or boats. Convenient to Routes 2/32/202 with easy access to VT/NH. Ideal for retreat property, campground, seasonal waterfront homes, or future recreational use.

offered at

$1,200,000

  • Listing ID: 73456451
  • Bedrooms: 5
  • Full Baths: 3
  • Half Baths: 3
  • Living Area: 3,244 sqft Convert
  • Lot Size: 10,134,234 sqft Convert
  • Acres: 232.65

Additional Details

Type: Single Family, Single Family Residence

Zip Code: 01331

Parking

Garage: 6

Garage Capacity: 31

Parking: Attached, Detached, Under, Carport, Garage Door Opener, Heated Garage, Storage, Paved Drive, Off Street, Unpaved

Parking Spaces: 31

Rooms and Dimensions

Total Rooms: 9

Contact: LRG Boston at (617) 233-5800

LRGBOSTON.COM

355 Boylston St. Boston, MA 02116

Map

Photos