Luxury Real Estate Group Boston > Medway > 114 Milford Street #1

LRG Boston

(617) 233-5800

355 Boylston St

Boston, Ma 02116

114 Milford Street #1

Medway, MA

Property Description

FOR RENT NOW! Welcome to this completely renovated House Rental available for immediate occupancy. Offering 3 spacious bedrooms and 2 bathrooms, this home is bright, spacious and offers modern finishes and a comfortable layout for today's lifestyle. Conveniently located in Medway near I-495 with quick access to shopping, dining and everyday amenities in Milford as well. In-Unit Laundry, extra storage space in the basement and off street parking and private yard space- perfect for family gatherings and furry friends (pets allowed!) Driveway will be paved next week.

offered at

$3,500

  • Listing ID: 73456701
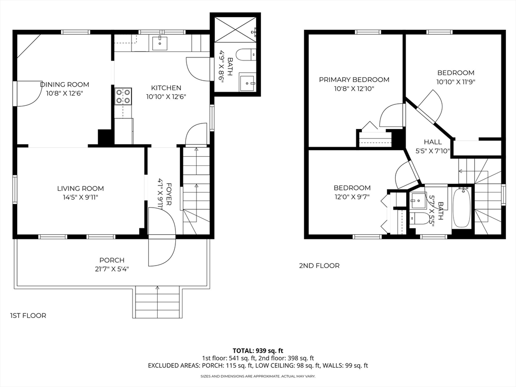
  • Bedrooms: 3
  • Full Baths: 2
  • Living Area: 939 sqft Convert

Additional Details

Type: Rental, Single Family Residence

Area: West Medway

Zip Code: 02053

Unit Level: 1

Parking

Garage Capacity: 2

Parking Spaces: 2

Rooms and Dimensions

Total Rooms: 8

Contact: LRG Boston at (617) 233-5800

LRGBOSTON.COM

355 Boylston St. Boston, MA 02116

Map

Photos