Luxury Real Estate Group Boston > Boston > 135 Havre #4

LRG Boston

(617) 233-5800

355 Boylston St

Boston, Ma 02116

135 Havre #4

Boston, MA

Property Description

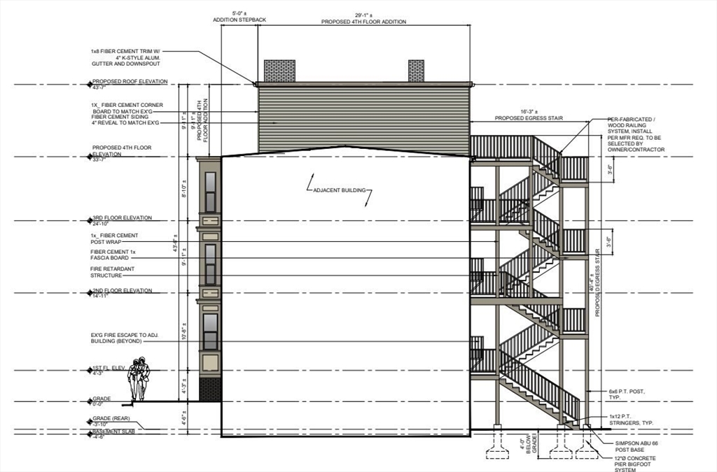
SKIP THE RED TAPE! Rare opportunity to acquire a fully engineered, permit-ready single unit development project in the heart of East Boston. Located next to prime Maverick Square neighborhood, the building has a pet-friendly fenced yard with BBQ area and is steps to Maverick and Airport T stops and the East Boston greenway and parks.The Project: Sale includes comprehensive, stamped architectural and structural plans 'shovel ready'. The approved design features a vertical addition (4th floor) to the existing footprint, maximizing the ~1,083 SF lot.

offered at

$85,000

  • Status: Price Change
  • Listing ID: 73457504
  • Bedrooms: 1
  • Full Baths: 1
  • Living Area: 585 sqft Convert
  • Lot Size: 1,080 sqft Convert
  • Acres: 0.02

Additional Details

Type: Condo, Condominium

Style: 2/3 Family

Zip Code: 02128

HOA Fee: $230

Living Levels: 4

Unit Level: 4

Rooms and Dimensions

Total Units: 4

Total Floors: 4

Total Rooms: 3

Contact: LRG Boston at (617) 233-5800

LRGBOSTON.COM

355 Boylston St. Boston, MA 02116

Map

Photos