Luxury Real Estate Group Boston > Somerville > 7 Washington

LRG Boston

(617) 233-5800

355 Boylston St

Boston, Ma 02116

7 Washington

Somerville, MA

Property Description

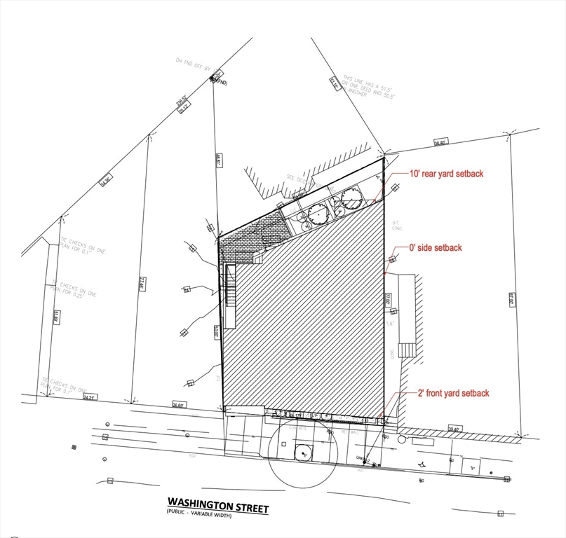
Rare high density development opportunity in Somerville with ZBA approved plans for 10 units, with the option for 12 with new somerville guidelines. This is a prime chance to invest in one of Somerville’s most sought-after neighborhoods. Currently used as a tenanted single-family residence, this MR-4 zoned lot allows for 4-story development - ideal for condo sellout, or multi-family hold. located less than 0.4 miles from the Green Line Extension and just minutes from Sullivan Square, Union Square, and Route 93, this property offers exceptional accessibility. Easy access into Boston and Assembly. Plans can either be advanced or modified to suit your vision, with options for lower unit count / create larger units.

offered at

$1,375,000

  • Listing ID: 73457647
  • Bedrooms: 17
  • Full Baths: 12
  • Living Area: 10,000 sqft Convert
  • Lot Size: 3,262 sqft Convert
  • Acres: 0.07

Additional Details

Type: Multi-Family, 5+ Family - 5+ Units Up/Down

Zip Code: 02143

Levels: 4

Rooms and Dimensions

Total Units: 10

Total Floors: 4

Total Rooms: 25

Contact: LRG Boston at (617) 233-5800

LRGBOSTON.COM

355 Boylston St. Boston, MA 02116

Map

Photos