Luxury Real Estate Group Boston > Orleans > 6 Hathorne Ln

LRG Boston

(617) 233-5800

355 Boylston St

Boston, Ma 02116

6 Hathorne Ln

Orleans, MA

Property Description

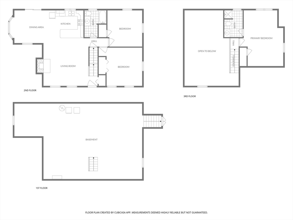
Charming East Orleans cape home in area of pricier neighbors, coming on the market for the first time since it was built in 1984! Great open floor plan, cathedral ceilings, skylight, private yard and full basement with high ceilings. New septic being installed, Come make this your Orleans full-time home or summer escape! Or bring your imagination for future expansion or rebuild. So many possibilities in an amazing, private location off Tonset Rd! Owners have not lived in property. Being sold as is, no repairs or updates will be made or negotiated. Title V has failed, system being replaced by sellers. Engineering and perc completed, permitting submitted.

offered at

$699,000

  • Status: New
  • Listing ID: 73457892
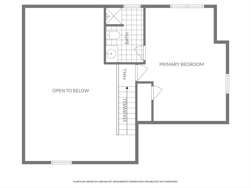
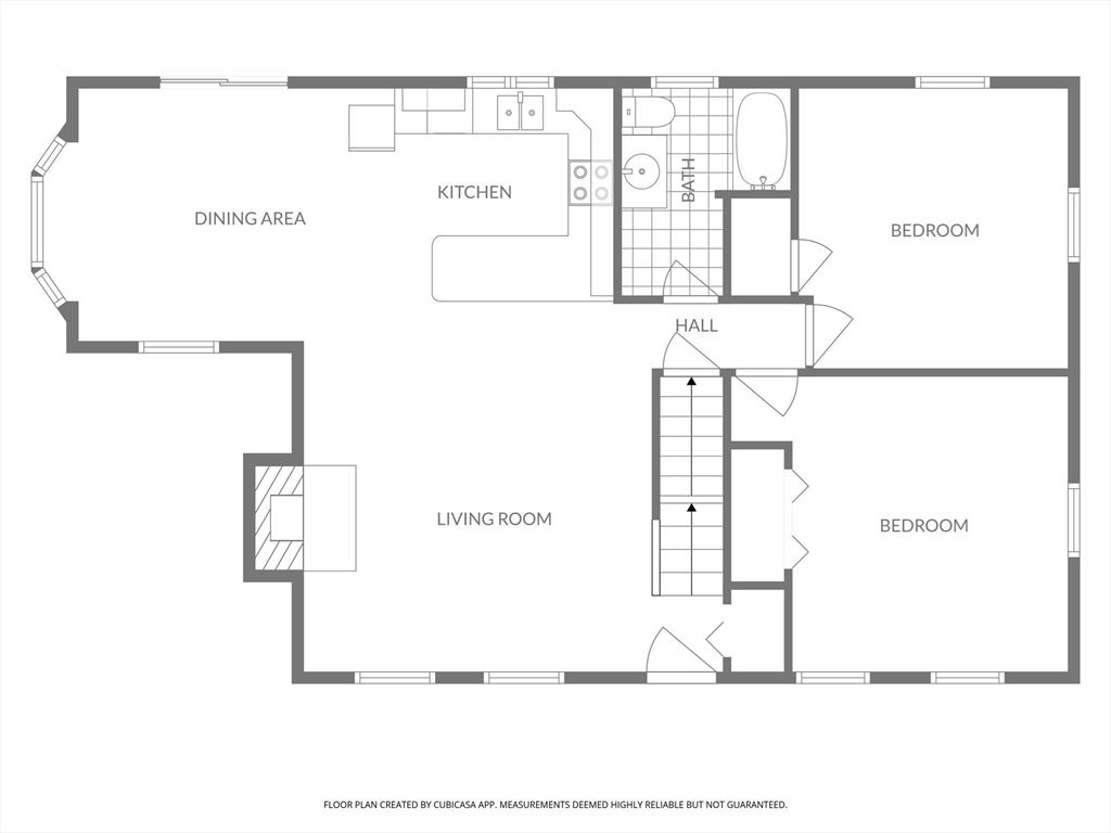
  • Bedrooms: 3
  • Full Baths: 2
  • Living Area: 1,583 sqft Convert
  • Lot Size: 20,038 sqft Convert
  • Acres: 0.46

Additional Details

Type: Single Family, Single Family Residence

Zip Code: 02653

Parking

Garage Capacity: 4

Parking: Driveway

Parking Spaces: 4

Rooms and Dimensions

Total Rooms: 6

Contact: LRG Boston at (617) 233-5800

LRGBOSTON.COM

355 Boylston St. Boston, MA 02116

Map

Photos