Luxury Real Estate Group Boston > Woburn > 74 Beach St #6-12

LRG Boston

(617) 233-5800

355 Boylston St

Boston, Ma 02116

74 Beach St #6-12

Woburn, MA

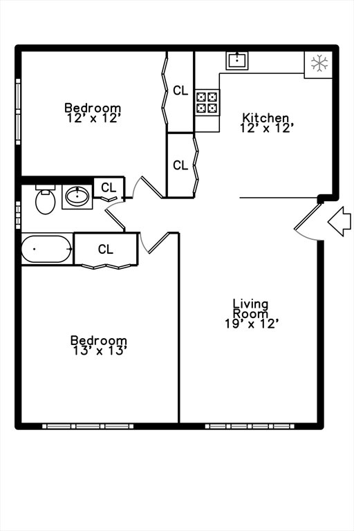
Property Description

Top Floor Corner Unit with Vaulted Ceilings! This spacious Penthouse located in desirable Continental Court, awaits those seeking comfort and convenience. Oversized living room with fresh paint feels very spacious with vaulted ceiling and open concept layout. Large, eat-in kitchen features a stylish backsplash, adding a touch of style and practicality to the heart of the home. Picture yourself preparing meals in this functional space, where the thoughtful design details contribute to a pleasant cooking and entertaining experience. Two large bedrooms with ample closet space, full bath, and 2 deeded parking spaces with plenty of guest parking make this unit a great investment. Nestled in a quiet location but only minutes to major roadways, commuter rail, and a short distance to the Boston Express bus stop. Coin operated laundry room & additional storage unit are conveniently located on the lower level. Enjoy being minutes away from major highways, downtown Woburn, restaurants & shopping.

offered at

$355,000

  • Status: New
  • Listing ID: 73458352
  • Bedrooms: 2
  • Full Baths: 1
  • Living Area: 786 sqft Convert

Additional Details

Type: Condo, Condominium

Style: Garden

Zip Code: 01801

HOA Fee: $379

Living Levels: 1

Unit Level: 3

Parking

Garage Capacity: 2

Parking: Off Street, Deeded, Guest, Paved

Parking Spaces: 2

Rooms and Dimensions

Total Units: 72

Total Floors: 1

Total Rooms: 4

Contact: LRG Boston at (617) 233-5800

LRGBOSTON.COM

355 Boylston St. Boston, MA 02116

Map

Photos