Luxury Real Estate Group Boston > Uxbridge > 127 Old Millville Rd

LRG Boston

(617) 233-5800

355 Boylston St

Boston, Ma 02116

127 Old Millville Rd

Uxbridge, MA

Property Description

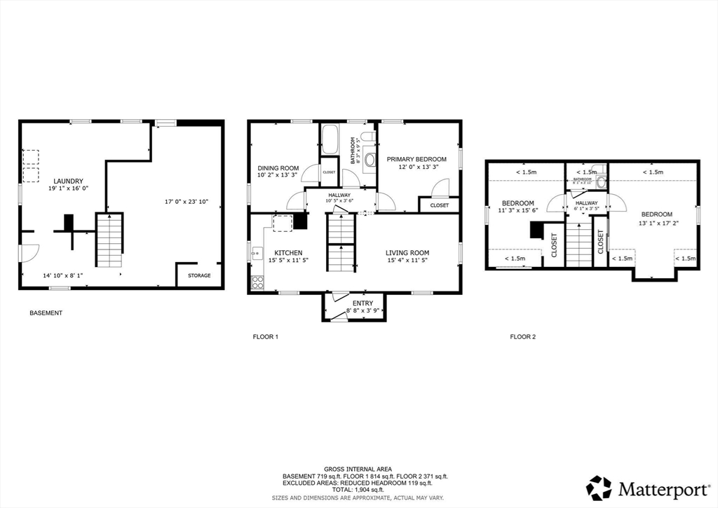
Welcome to 127 Old Millville Rd! This charming 3-bedroom, 1.5-bath home has been beautifully updated throughout. The living room, dining room and primary bedroom on the main level feature beautiful hardwood floors. The remodeled kitchen features new flooring, stylish backsplash, new appliances, and elegant crown molding. Two additional bedrooms are located on the 2nd floor with a shared bathroom that showcases an updated vanity, lighting, and flooring. Enjoy the convenience of a new mudroom with functional shelving and hooks. Additional highlights include a partially finished basement for additional living space, and a 2-car garage with new siding. A truly wonderful property with plenty of space both inside and out, ready for its next chapter!*New carpet installed in basement on 12/16 and electric heating in basement

offered at

$549,900

  • Status: Back on Market
  • Listing ID: 73458387
  • Bedrooms: 3
  • Full Baths: 1
  • Half Baths: 1
  • Living Area: 1,664 sqft Convert
  • Lot Size: 24,829 sqft Convert
  • Acres: 0.57

Additional Details

Type: Single Family, Single Family Residence

Zip Code: 01569

Parking

Garage: 2

Garage Capacity: 11

Parking: Detached, Paved Drive, Off Street, Paved

Parking Spaces: 11

Rooms and Dimensions

Total Rooms: 7

Contact: LRG Boston at (617) 233-5800

LRGBOSTON.COM

355 Boylston St. Boston, MA 02116

Map

Photos