Luxury Real Estate Group Boston > Plymouth > 17 Turkey Trail

LRG Boston

(617) 233-5800

355 Boylston St

Boston, Ma 02116

17 Turkey Trail

Plymouth, MA

Property Description

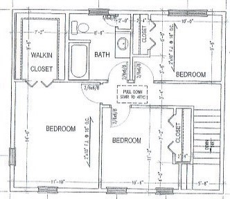
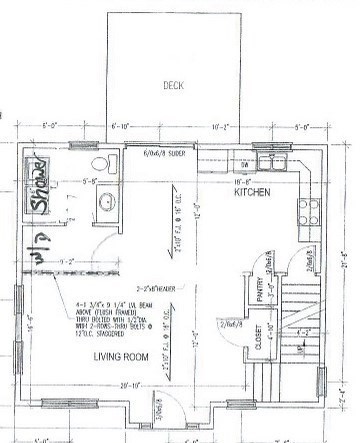
POND WALK - [GPS 615 Wareham Rd., Plym] Welcome to Pond Walk a beautiful pond community in So. Plymouth. This new subdivision has 49 homes tucked away in lush greenery with rights to White Island Pond. The "Pembroke" is a well-planned out colonial with 3 beds and 2 full baths. Once entering the home you'll notice the open floor plan, ample sized living rm, leading into an eat in kitchen with access to the backyard. First floor laundry rm and full bath round out this floor. Moving up the naturally lit staircase you'll find 3 bedrooms , the primary bedroom has a walk-in closet. there is also a full bathroom. Standard building package starting at 500k . Other homes available. Buyer to make selections from buiders choices per specification . All photos are facimilies. Builder reservers the right to make any style changes to plans as needed. Premium lot, others available. Anticipated delivery late spring 2026.

offered at

$535,000

  • Status: New
  • Listing ID: 73458392
  • Bedrooms: 3
  • Full Baths: 2
  • Living Area: 1,360 sqft Convert
  • Lot Size: 17,635 sqft Convert
  • Acres: 0.4

Additional Details

Type: Single Family, Single Family Residence

Zip Code: 02360

HOA Fee: $100

Parking

Garage Capacity: 2

Parking: Paved Drive, Off Street, Paved

Parking Spaces: 2

Rooms and Dimensions

Total Rooms: 7

Contact: LRG Boston at (617) 233-5800

LRGBOSTON.COM

355 Boylston St. Boston, MA 02116

Map

Photos